חומות ירושלים על פי ספר נחמיה

 

(לפני קריאת מאמר זה רצוי לקרוא את המאמר על גבולות הר הבית)

 1. הקדמה

            בפרק ג' של ספר נחמיה מתואר מהלך חיזוק חומות ירושלים. הבניה התחילה בשער צאן והסתיימה באותו השער. מכאן ברור שהיא הקיפה את כל העיר. התיאור מלא פרטים מזהים: שמות שערים, מגדלים, בריכת שילוח, עיר דוד, קברי דוד ומבנים אחרים. למרות מאמצים רבים אשר הושקעו בחקר ירושלים זה קרוב ל- 150 שנה, טרם זוהו מקומות אשר מוזכרים בספר. הדבר כמובן תלוי בהבנת הקף חומות ירושלים בזמן נחמיה. עוד לפני כ- 20 שנה היה מקובל לחשוב שירושלים של בית ראשון כללה, פרט להר הבית,  רק את הגבעה הדרום-מזרחית (המכונה היום "עיר דוד"). אבל עם חפירות של אביגד ברובע היהודי, התגבשה ההכרה שירושלים של בית ראשון כללה גם את הגבעה המערבית. התברר איפה שדברי יוספוס במלחמות ה' ד' ב' בעניין חומה הישנה הם נכונים. נזכיר שלפי דבריו חומה הישנה ברוח צפון התחילה על יד מגדל הפיקוס (לפי הבנתנו זהו  מגדל אמצעי) ומשם השתרעה מזרחה עד כותל מערבי של הר הבית (כנראה סמוך לקשת וילסון). ברוח מערב חומה זאת תאמה את חומת העיר העתיקה של היום עד פינה דרום-מערבית שלה. התוואי של החומה דרומה ומזרחה עד מעיין שלוח התברר בחפירות של  Bliss and Dickie (1). המשך החומה צפונה עד חיבורה עם הר הבית נתן לשער בעזרת חפירות של Guthe (2) ו-Warren (3). זאת החומה אשר החריב נבוכדנצר וזאת בהכרח החומה אשר שקם נחמיה. וכן משמע בדברי סנבלט וטוביה (שם, ג' ל''ד-ל''ה) שנחמיה בנה חומות ההרוסות. וכן בפסוק ג' ל''ח "ונבנה את החומה ותקשר כל החומה עד חציה ויהיה לב העם לעשות", שבנה כל חומת העיר (בשלב ההוא עד חצי גובה או עובי). וגם מבחינה הלכתית למי שסובר שקדושה ראשונה של ירושלים קדשה לשעתה וקדשה לעתיד לבוא (וכך פסק רמב''ם), לא הייתה לנחמיה יכולת לצמצם גבולות קדושת ירושלים. וכן כתוב בתוספתא סנהדרין פרק ג' "אבא שאול אומר שתי בצעין היו בירושלים התחתונה והעליונה. התחתונה נתקדשה בכל אלו והעליונה לא קדשו כשעלו מן הגולה שלא במלך ושלא באורים ובתומים וכו'". משמע שמשום שלא היה להם מלך ולא אורים ותומים, לא יכלו להוסיף קדושה לעיר (הערה 1: דבר זה שלעצמו סותר את התיאוריה הישנה שירושלים בזמן בית ראשון ותחילת בית שני הצטמצמה לגבעה מזרחית ורק בהמשך התפשטה לגבעה מערבית). אבל בודאי שלא צמצמו אותה.

            פרט לחומות ירושלים אשר הזכרנו, נחמיה שקם חומות ושערי הר הבית. וכן כתוב בנחמיה ב' ח' "...אשר יתן לי עצים לקרות את שערי הבירה אשר לבית ולחומת העיר ולבית אשר אבוא אליו". שערי הבירה אשר לבית הם שערי הר הבית. כל אותם חומות ושערים התקדשו אחר כך  ע''י שתי תודות כפי שכתוב בנחמיה י''ב. מאחר ובניה התחילה משער הצאן ע''י כהן גדול, אז מן הסתם זהו שער שושן המזרחי "שבו כהן גדול השורף את הפרה וכל מסעדיה יוצאים להר המשחה" (מדות פ''א מ''ג). ומדוע נקרא שער הצאן? אולי משום שדרכו היו מולכים את שעיר לעזאזל.

            מה היה כיוון הבניה? דרך הקפה המקובלת בתורה היא דרך ימין, דהיינו נגד כיוון השעון. לכן הם בנו משער שושן צפונה עד פינה צפון-מזרחית של הר הבית, משם מערבה כל כותל צפוני ומשם דרומה לאורך כותל מערבי. אם המשיכו לבנות כתלים של הר הבית כולל כותל דרומי, כיצד עברו לחומת העיר? אלא בהכרח הייתה שם קפיצה מכותל דרומי של הר הבית לנקודת חיבור של החומה הישנה עם כותל מערבי של הר הבית. אנחנו נדון בזה בהמשך.

  

2. תחילת חשבון חומות נחמיה והשלכות על מיקום עיר דוד

 

            ראשית נעשה חשבון אורך הכתלים. הקף כתלים של הר הבית המקודש הוא 1000 מ' (ראה מפת הר הבית). כפי שיתברר בהמשך, הקף חומות ירושלים משער קיפונוס הפנימי עד פינה דרום-מזרחית של הר הבית המקודש (ראה מפת ירושלים) הוא בערך 2900 מ'. סה''כ אורך החומות כ- 3900 מ'. חומה זאת נחלקה לקטעים קטעים אשר נבנו ע''י קבוצות מסוימות של אנשים. סה''כ מוזכרים בפרק ג' בנחמיה 41 קבוצות של אנשים. מתוכם אלישיב בנה שער צאן ומגדלים מאה וחננאל וארבע קבוצות בנו רק שערים: דגים, הישנה, גיא, אשפות. לגבי שבע קבוצות כתוב שהם החזיקו "מידה שנית". שם "מידה שניה" לפי דעתנו מעיד על כך שהייתה "מידה ראשונה" בסיסית, הוא אורך אחיד של כל הקטעים, פרט לאלו שבע אשר בנו אורך כפול (אנחנו נאמת את השערתנו זאת בהמשך).  על כן מדובר כאן ב-43 קטעים. אם נחלק 3900 מ' ב- 43, נקבל 90.7 מ'. משער שושן עד שער קיפונוס לפי חשבוננו מרחק 520 מ', בערך 6 קטעים.  והנה מוזכרים שם בתחילה שש קבוצות אשר בנו חומות: אנשי יריחו, זכור, מרמות, משלם, צדוק, התקועים (פסוקים ב'-ה'). ואחריהם "ואת השער הישנה החזיקו יוידע וכו'". על כן נראה לכוון שער הישנה אל שער קיפונוס (אנו נעשה חשבון מדויק בהמשך). אחריהם שלש קבוצות: מלטיה, עוזיאל וחנניה (פסוקים ז' –ח') "ויעזבו את ירושלים עד החומה הרחבה". אחרי זה שש קטעים של: רפיה, ידיה, חטוש, מידה שנית של מלכיה וקטע של שלום (פסוקים ט' –י''ב). חנון בנה את שער הגיא ומלכיה בנה שער אשפות. והנה פסוק י''ג מעיד "ואלף אמה בחומה עד שער השפות". מי בנה אלף אמה אלו? זהו בערך אורך של ששה קטעים. האם אלו ששה קטעים שמנינו לעיל? ומדוע הכתוב הזכיר דווקא ששה קטעים אלו? ברור ששער הגיא כבר לא נמצא בהר הבית. יותר מזה, גם קטע של ידיה "נגד ביתו" (פסוק י') לא נמצא בהר הבית כי לא היו להם בתים בשטח הר הבית. אולי הפסוק "ויעזבו את ירושלים עד החומה הרחבה" היה סימן לקפיצה מחומת הר הבית לחומת העיר? ופסוק "אלף אמה בחומה" ייחד את ששה קטעים ראשונים אשר בנו בחומת העיר? נלמד מכאן שאורך כל קטע היה 1000/6 אמות. באמות הארץ של 51 ס''מ (ראה פרק 1 במאמר על גבולות הר הבית ) נקבל 85 מ'. אותם "אלף אמה" לפי הבנתנו מתחילים ליד שער קיפונוס הוא שער הישנה, במקום בו חומה צפונית ישנה של העיר התחברה לכותל מערבי מקודש של הר הבית. אם נמדוד משם מערבה 1000 אמה שהם 510 מ' לאורך חומה משוערת של העיר עד לשער אשפות, נגיע סמוך לגבול מזרחי של בריכת חיזקיה (ראה גליון צפוני(253KB)  של מפת ירושלים). והנה לפי נחמיה ג' ט''ו, מיד אחרי שער אשפות מתחילה חומת ברכת השלח לגן המלך ומשם בהמשך מגיעים למעלות היורדות מעיר דוד. וקטע הבא של נחמיה בן עזבוק מגיע לקברי דוד. על כן, בריכת שילוח הייתה  בשטח בריכת חזקיה של היום ועיר דוד באזור מגדל דוד! בדיוק כטענת יוספוס במלחמות ה' ד' א' וכפי המסורת אשר היתה מקובלת משך דורות בירושלים עד לעת האחרונה. אבל יוספוס מזהה מעיין שילוח עם מעיין הידוע בדרום-מזרח ירושלים! ואיך אנו מעמידים אותו ליד בריכת חזקיה? ויש לומר שהיו בירושלים שני מעיינות, עליון ותחתון. חזקיה סתם "מוצא מימי גיחון העליון" (דה''ב ל''ב ל'). משמע שהיה מעיין גיחון תחתון. ולשני המעיינות היה שם נוסף- שילוח (ויתכן ששלוחה של מעיין נקראה בשם זה). נחמיה דבר על מעיין עליון ויוספוס על תחתון. ויתכן שבזמן של יוספוס מעיין עליון לא היה ניכר כי הוא כוסה ע''י בריכת חזקיה אשר קבלה מימיה ממעיינות של בית לחם דרך בריכת ממילא.

            מאחר וטענה שלנו סותרת את הקונצנזוס של מרבית חוקרי ירושלים במשך כ- 100 שנים אחרונות, נבחן אותה בעין ביקורתית. מי אמר שמחומה הרחבה היתה קפיצה מערבה לחומת העיר? שמא הבניה נמשכה מפינה דרום-מזרחית של הר הבית דרומה לאורך חומה מזרחית של העיר עד אשר הגיעה לבריכת שילוח סמוך לקצה דרומי של הגבעה המזרחית? אורך חומה המזרחית מפינה דרום-מזרחית של הר הבית המקודש עד כנגד בריכת שילוח של היום הוא  בערך 680 מ'. אולי חנון אשר בנה שער הגיא ומלכיה אשר בנה שער אשפות, גם בנו כל אחד קטע של חומה. נמצא שמחומה הרחבה עד חומת בריכת שילוח 8 קטעים. אם כל קטע היה באורך 85 אז יש כאן בדיוק 680 מ'!  ופסוק י''ג מנה 1000 אמה בחומה אשר בנו שש קבוצות שהוזכרו במפורש! נמשיך את תיאור החומה. אחרי שהגענו לקצה דרומי של חומה מזרחית ליד בריכת שילוח, אנו ממשיכים עם חומה דרומית עד כנגד הר ציון, סובבים אותו ועולים צפונה לאורך חומה מערבית של העיר. אורך החומה מנגד לבריכת שילוח עד פינה דרום-מערבית של חומת העיר העתיקה כ- 1170 מ', קרוב ל- 14 קטעים של 85 מ'. ספר נחמיה מונה אחרי בריכת שילוח 16 קטעים (מתוכם ארבעה קטעים כפולים) עד שהוא מגיע לפסוק כ''ה "פלל בן אוזי מנגד המקצוע והמגדל היוצא מבית המלך העליון אשר לחצר המטרה". אם כן, בית המלך העליון היה כ- 190 מ' צפונית לפינה דרום-מערבית של חומת העיר העתיקה, באזור גן הארמני. משם עוד שני קטעים של פלל בן אוזי ושל פדיה בן פרוש. ואנו מגיעים לפסוק כ''ו "והנתינים היו ישבים בעפל עד נגד שער המים למזרח וכו'"! לפי חשבון מרחקים הגענו למגדל אמצעי אשר דרומית למגדל דוד. האם אזור זה נקרא עופל? והנה  יוספוס במלחמות  ה' ד' ב' כותב בפרוש שעופל היה בגבול מזרחי של העיר, בין בריכת שילוח וחומה מזרחית של הר הבית! וכן בירושלמי תענית ט''ז ע''ב "שאלו את ר''א מאימתי מתפללין על הגשמים שילכו להם אמר להן כדי שיהא אדם עומד בקרן העופל ומשקשק את רגליו בנחל קדרון".  ניסיון חילופי לא צלח.

            אולי התיאור בנחמיה לא כולל את חומת הר הבית ושער צאן לא נמצא בהר הבית אלא בעיר? נניח ששער צאן נמצא 15-17 קטעים מבריכת שילוח בהקפה דרך ימין. הבעיה היא שמבריכת השילוח עד העופל בו ישבו נתינים ישנם 18 קטעים, כ- 40% בכלל מספר הקטעים! ואילו המרחק מבריכת שילוח עד קצה צפוני של עופל הוא לא יותר מ- 680 מ' או כ- 17% מאורך החומות. תחום זה לא מצטיין בחומות גדולות ובצורות לעומת שאר חלקי העיר. אלא יש להודות בטעות. עיר דוד לא נמצאת בגבעה המזרחית!

            לאחרונה, מתוך חפירות של רוני רייך ואלי שוקרון, התברר שמעיין שילוח היה בזמן חזקיה מוקף ע''י חומת העיר. על כן, לחזקיה לא היה כל צורך לחצוב את הנקבה. עוד התברר שתעלת שלוח אשר יוחסה לשלמה, נבנתה כמה מאות שנים לפניו. בעקבות גילוים אלה, הרשל שנק, העורך של BAR כתב מאמר בשם “Everything you ever knew about Jerusalem is WRONG” (BAR, Nov/Dec 1999). אבל עדיין הוא מנסה לתרץ מדוע חזקיה עשה את הנקבה. והנה יוספוס במלחמות ה' ד ב' קורא לבריכת שילוח בשם בריכת שלמה. בעבר הסבירו את הדבר בכך ששלמה עשה את תעלת שילוח ואת הבריכה בסופה. אבל אם שלמה לא עשה את התעלה, מדוע יוספוס קרא לבריכה על שמו? אולי משום ששלמה חצב את הנקבה? (מה היתה מטרת הנקבה? על כך נדון בהמשך). ואת נקבת חזקיה יש לחפש במקום אחר, ליד בריכת חזקיה. בחפירות של רשות העתיקות אשר ניהל עמית ראם בקשלה בשנות 2000-2001, נתגלתה נקבה מרשימה מאד אשר יוצאת מכותל מערבי של העיר (ראה גיליון דרומי (361KB) של מפת ירושלים). נקבה זאת עוברת בגובה 760 מ' מעל פני הים, כגובה קרקעית של בריכת חזקיה. יתכן שמקורה בבריכת חזקיה והיא נקבת חזקיה אמיתית.  

            גם את מגדל דוד הכניסו ב"גרשיים" ומייחסים אותו להורדוס. מדוע? משום אבנים בולטות בעלי סיתות שולים? אין זאת בניה אופיינית דווקא להורדוס. סיוון וסולר (4) מתארים מצבור של חצים יוונים אשר נורו אל מגדל דוד. לכאורה זאת הוכחה שמגדל נבנה לפני הורדוס! אבל סיון וסולר מתרצים שמגדל דוד נבנה ע''י הורדוס סביב מגדל פנימי קטן  והחצים נורו נגד מגדל הקטן. הם לא מביאים ראיה לטענתם. לעומת זאת שיק בשנת 1898 בדק את הבניין (עד כמה שמוט שלו הגיע) ומצא שהוא עשוי כמקשה אחת ללא חללים. מדוע מייחסים את המגדל להורדוס? יוספוס במלחמות ה' ד' ג' מתאר את מגדל פצאל, 40 על 40 אמה וקומת יסוד גובה 40 אמה. מעל היסוד נבנה בנין נוסף בגובה 50 אמה. היום נשתמר יסוד מקורי בגובה  19.85 מ'. קצה עליון של המבנה צד צפוני אורך 21.4 מ', מזרחי 17.12 מ' (נתונים של Johns(5)). מידות אלו קרובות למידות שנקט יוספוס (אנו נדון בהמשך במשמעות של מידות רוחב ואורך ומיקומו וכיונו של המגדל). לפי דברי יוספוס, הורדוס בנה את מגדל פצאל. מאידך, במלחמות ה' ד' א' הוא כותב אודות עיר עליונה "על חסנה נקראה הגבעה הזאת בשם מצודת דוד המלך". כלומר הוא מזהה את המצודה עם מעשה דוד ולא הורדוס. על כן יש לומר שהורדוס בנה חלק עליון של מגדל דוד, החל מגובה היסוד של 40 אמה. ואילו היסוד הוא מעשה דוד.

            ישנם עוד דברים רבים כגון מקום של אקרה יוונית אשר מוכיחים שעיר דוד היתה בצד מערבי של העיר. אנחנו נדון בכך בהמשך. כעת נציג חשבון מפורט של חומות נחמיה מתחילה ועד סוף.    

     

3. תיאור מפורט של חומות נחמיה

            לעיל הצגנו ניסיון ראשוני לשחזר מהלך חומות נחמיה. בעקבות ניסיון זה הגענו למסקנה שעיר דוד נמצאת במערב ירושלים ושכל אחד מבוני החומה החזיק בקטע באורך אחיד, 1000/6 אמה, פרט לאלו אשר החזיקו מידה שנית-אורך כפול. נקטנו באמת הארץ של 51 ס''מ היא אמת יחזקאל שבה נמדדו בית המקדש, חצרות בית ה', גבולות ירושלים וגבולות הארץ. לכן כל קטע הוא בדיוק 85 מ'. מאידך, לפי חשבוננו במאמר על גבולות הר הבית, הר הבית המקודש נמדד ע''י שתי אמות. גבול דרומי ומזרחי ע''י אמה של 48 ס''מ וגבול צפוני ומערבי ע''י אמה של 52 ס''מ כאשר פינות דרום-מערבית וצפון-מזרחית ישירות (ראה מפת הר הבית). מתברר שבהר הבית קיימת מחזוריות מבוססת על אמה של 48 ס''מ. לכן את הקטעים של 1000/6 אמה בהר הבית מדדנו באמות של 48 ס''מ, כל קטע 80 מ'. תיאור הבניה הוא ממזרח לצפון למערב לדרום ובחזרה למזרח כדרך הקפת המזבח וככל פניות דרך ימין. סיכמנו אותו במפה ממוחשבת  של ירושלים והר הבית. קטעי החומה נמדדו על גבי מפות מפורטות 1:1000 בספר של בליס (1). כתלים חיצוניים של הר הבית נמדדו על ידי "מודדי שומרון" (ריבועים שחורים בחומה האדומה במפת הר הבית). גבולות הר הבית המקודש וגבולות ירושלים לעתיד לבוא חושבו באופן מתמטי. בנוסף לזה העלנו את כל הנתונים על מפה כללית בספר של בליס (קנה מידה בערך 1:37000) בגליון צפוני  (253KB)   וגליון דרומי (361KB). קטעים של חלק הדרומי גם העלנו על מפות מפורטות של בליס 1:1000, במפות  1, 2, 3, 4, 5, 6, 7, 8.

 

3.1. משער הצאן עד חומה הרחבה  

 

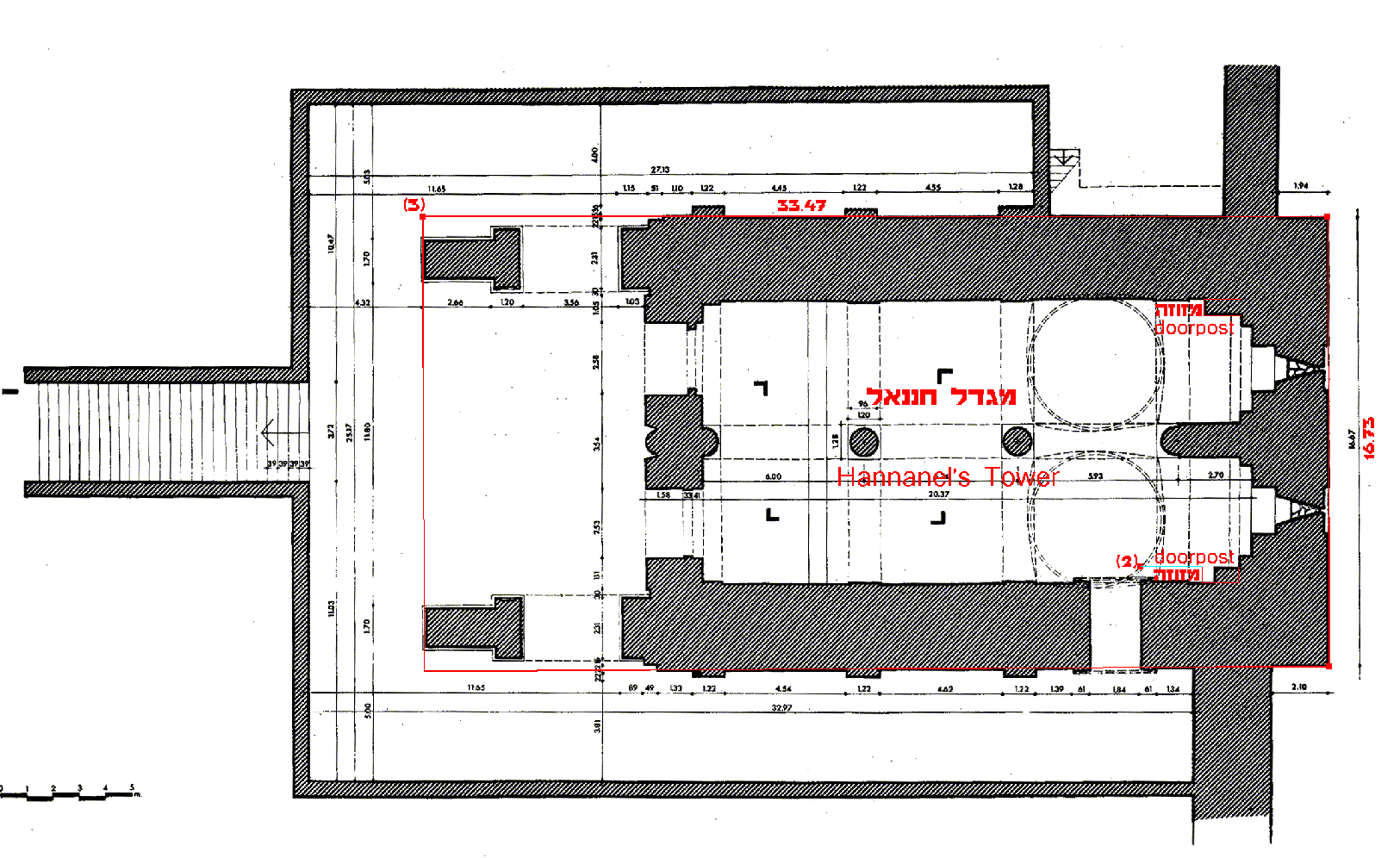
            "ויקם אלישיב הכהן הגדול ואחיו הכהנים ויבנו את שער הצאן המה קדשוהו ויעמידו דלתתיו ועד מגדל המאה קדשוהו עד מגדל חננאל" (נחמיה ג' א'). לעיל הסברנו מדוע שער צאן זהו שער שושן המזרחי. לפי חשבוננו מרכז שער שושן נמצא 362 אמות (כל האמות להלן הם של 51 ס''מ) ממרכז קדש הקדשים. אנו נעשה חשבון בעיקר לפי בית שני ונצרף אליו נתונים עבור בית ראשון. נזכיר שלפי חשבוננו מרכז ק''ק של בית שני נמצא בנ.צ. 172379.64/131705.22 )(51 ס''מ מערבית ו- 102 ס''מ צפונית ממרכז כיפת הסלע) וציר הבית מכוון 5.971 מעלות צפונה ממזרח (כוון זריחת השמש בפסח ממוצע, 13 יום אחרי התקופה). על כן מרכז שער  שושן נמצא בנ.צ.563.26/724.43 (השמטנו שלש ספרות ראשונות של קורדינטות 172/131). נמספר נקודה זאת ע''י (1). עובי כותל מזרחי הוא 9 אמות. מרכז השער מבחוץ הוא 567.825/724.903 (הערה 2: מרכז ק''ק של בית ראשון נמצא במרחק של רגל-33.3 ס''מ דרומית ממרכז ק''ק של בית שני. ציר בית ראשון מכוון בזוית 6.1975 מעלות, כיון הזריחה 13.5 יום אחרי התקופה. על כן מרכז שער שושן של בית ראשון נמצא בנ.צ. 563.22/724.82, ובצד חיצוני 567.78/725.315, 41.6 ס''מ צפונית מחשבון בית שני). נזכיר שלפי חשבוננו פינה צפון-מזרחית של הר הבית המקודש נמצאת 135/2+115=365/2 אמות צפונה ממרכז שער שושן לאורך כותל מזרחי אשר ניצב לציר הבית. על כן פינה זאת נמצאת בנ.צ. 553.58/817.00 (ועבור בית ראשון נ.צ. 553.17/817.35). משם ומערבה (יותר מדויק, בזוית 5.971 מעלות דרומה ממערב) לאורך 260 מ' נמשך גבול צפוני של הר הבית המקודש. מתברר שגבול צפוני של מבנה שער הרחמים חופף במדויק (דיוק מדידה של 1 ס''מ) את גבול צפוני של הר הבית המקודש לפי חשבון בית שני. לפי השערתנו, מבנה זה הוא שריד של מגדל חננאל (או נבנה על גבי שרידיו). מגדל מאה נמצא מאה אמה של 51 ס''מ דרומה מפינה צפון-מזרחית של הר הבית המקודש (מכאן גם שמו). כעת השתמרה שם בליטה של 67 ס''מ בכותל המזרחי. קצה מערבי של הבליטה נ.צ. 563.04/767.28 נמדד בגובה 730.1 מ'. משם לפינה צפון-מזרחית של הר הבית של בית שני מרחק 50.61 מ' ושל בית ראשון 51.03 מ' או כמעט מדיוק 100 אמה. המרחק מבליטה הנ''ל למרכז שער שושן של בית ראשון (צד חיצוני) הוא 42.23 מ'.  בציורים מלפני 500 שנה רואים שם מגדל כפול (ראה קטע ממפה של  Breydenbach משנת 1497. המקור 1.76MB נמצא במפה)).  רוחב המגדל בערך כמו רוחב שער רחמים. האחרון נמדד על ידינו והוא 16.73 מ'. אם נניח שרוחב מגדל מאה היה גם כן 16.73 מ' אז המרחק מגבול דרומי של המגדל עד מרכז שער שושן הנ''ל הוא 25.50 מ' או בדיוק 50 אמות! כלומר מגדל מאה משלים מצפון את כתף הצפונית של בית המקדש אשר רוחבו 100 אמה. אולי השם "מאה" נתן למגדל זה משום שני מופתים אלו. מכאן מגדל מאה שמר את חשבון גבולות של בית ראשון ומגדל חננאל את גבולות בית שני.

             "ועל ידו בנו אנשי ירחו" (שם ב'). קטע של אנשי יריחו מתחיל במרכז שער הצאן ונמשך צפונה 80 מ' לאורך חומה מזרחית. וכן בהמשך אנו נראה שרוחב השערים אינו ממעט מאורך הקטע שבנה פלוני, אע''פ שלא הוא בנה את השער. על כן סוף הקטע שלהם נמצא בנקודה (2) נ.צ. 554.94/803.99. בשער רחמים השתמרו שתי מזוזות "הרודיאניות" ענקיות. הרווח בין המזוזות הוא פתח השער והוא סתום עכשיו. נקודה (2) פוגעת בגבול צפוני של מזוזה הדרומית (עד כדי דיוק תוכנית השער (291KB) בקני מידה 1:267 בספר "שער הרחמים", 1975, של אלי שילר), דהיינו בגבול דרומי של פתח השער. משם ועד גבול צפוני של הר הבית מרחק 13.075 מ' ובתוספת עובי כותל צפוני 9 אמות, 17.665 מ'. בפינה צפון-מערבית של הרחבה שעליה עומדת כיפת הסלע, ישנו גרם מדרגות. מדרגה תחתונה בנויה אבנים גדולות מאד. באבן דרומית ביותר ריטמאיר זיהה בליטה וסיתות שולים (ראה שריד כותל במפת הר הבית וצילום דרומי). אורך המדרגה עד הנקודה בו מסתימות אבנים גדולות (ראה צילום צפוני) הוא 17.68 מ' (מדידת פרופ' קאופמן). לפי חשבוני, נקודה זאת נמצאת בדיוק על גבול צפוני של הר הבית המקודש בתוספת עובי כותל צפוני 9 אמות (הכוונה לבית שני).  השערה שלנו שאבנים אלו השתמרו מחומה מערבית של בירה הקדומה, לפני ששמעון חשמונאי העתיק אותה צפונה. אם כן רוחב הבירה היה כנגד רוחב מגדל חננאל. נזכיר שרוחב שער רחמים כולל כתליו, דרומי וצפוני הוא 16.73 מ' (על פי שתי מדידות מדויקות בלתי תלויות). יתכן שכל רוחב זה נקרא מגדל חננאל, אלא שאנשי יריחו החזיקו 80 מ' ממרכז שער שושן עד תחילת פתח שער רחמים. יש גם משמעות בכך שאנשי יריחו בנו את הקטע הראשון של החומה והוא קטע הצפון מזרחי. כידוע, 500 על 500 אמה של דבשת יריחו נתנו לאותו שבט שבחלקו יבנה בית המקדש, כנגד 500 על 500 אמה של הר הבית. ויריחו נמצאת צפונית-מזרחית להר הבית.

            "ועל ידו בנה זכור בן אמרי" (שם). מאחר ומגדל חננאל נתקדש ע''י אלישיב כהן גדול, זכור בן אמרי התחיל מגבול מערבי של מגדל חננאל. מהו אורך של מגדל חננאל? גבול מערבי של העמודים המערביים ביותר של שער רחמים עובר כ- 27 מ' מערבה מנקודה (2) (הכיוונים דרום-צפון ומזרח-מערב הם במערכת בית שני אשר מסובב 5.971 מעלות כנגד השעון). מאידך, לפי חשבוננו גבול מזרחי של חומת החיל עובר 53 אמות או 27.03 מ' מערבית לנקודה (2) (ראה מפת הר הבית. מרחק בין עזרה לגבול מזרחי של הר הבית 213 אמה. זה מוסבר בפרק 9.3 של המאמר על גבולות הר הבית. רוחב החיל המזרחי 10 אמות. עובי כתלים 5 אמות) . אבל ברצוננו להתאים את חשבון בנית החומות כדי שנקודה (8) בהמשך תפגע במרכז שער קיפונוס (ראה בהמשך). לשם כך יש לדרוש שמגדל חננאל ימשך 26.925 מ' מערבה מנקודה (2). על כן תחילת קטע של זכור בן אמרי נמצאת בנקודה (3) נ.צ. 526.80/814.19. (הערה 3: לפי חשבון בית ראשון נקבל נקודה (3) 526.40/814.44). פינה צפון-מזרחית של מבנה שער רחמים נמצאת בנ.צ. 560.09/817.67, נמדד בגובה 732.18. משם עד נקודה (3) של בית שני מרחק 33.47 מ'. אורך השער מחזית המזרחית שלו עד גבול מערבי של העמודים המערביים נמצא בטווח 33.47-33.58 מ' (נמדד על גבי תוכנית השער  בספר של שילר). הפלא הוא שאורך 33.47 מ' הוא בדיוק כפל של רוחב השער 16.73 מ'! יש כאן  ארבעה מופתים: א) גבול צפוני של השער חופף את גבול צפוני של הר הבית המקודש; ב) המרחק ממרכז שער שושן עד תחילת פתח שער רחמים הוא בדיוק 80 מ'-אורך יחידה בסיסית של 1000/6 אמה בהר הבית; ג) קצה מערבי של מבנה השער מסתיים במרחק שלם של קטעים של 80 מ' ממרכז שער קיפונוס; ד) אורך השער הוא כפל של רוחב השער.

            (הערה 4: תוכנית שער רחמים (אפשר לדלג בקריאה ראשונה). מה פשר המידות של 33.47 מ' ו- 16.73 מ'? המרחק מפינה צפון מזרחית של השער עד נקודה (3) לפי חשבון בית ראשון הוא 33.84 מ'. ממוצע בין מספרים 33.47 ו- 33.84 הוא 33.66 מ', דהיינו 66 אמות של 51 ס''מ. יתכן שגודל בליטת חזית השער מזרחה נקבע על מנת לשמש פשרה בין חשבון בית ראשון ולבין חשבון בית שני כנ''ל. ואילו רוחב השער נקבע כמחצית האורך שלו בפועל. אפשרות אחרת שרוחב השער זהה לרוחב מגדל מאה. והאחרון נקבע באופן שיתקיימו שני מופתים כפי שהבאנו לעיל. מידה 16.73 (יותר מדויק 16.728) ניתן להציג בתור סכום של 32 אמות של 51 ס''מ ו- 5/6 אמה של 49 ס''מ. אמה של 49 ס''מ היא אחת האמות אשר היתה בשער שושן, עדיפה חצי אצבע על אמת משה. שיעור 5/6 של אמה נקרא אמה של 5 טפחים. מצינו במזבח שחלקו נמדד באמות של ששה טפחים וחלקו באמות של חמשה טפחים. על כן נתן לומר שרוחב שער רחמים הוא 33 אמות וכן רוחב משוער של מגדל מאה. המרחק מבליטת מגדל מאה הנ''ל עד גבול דרומי של שער רחמים הוא 33.70 מ' או 66 אמות ו- 4 ס''מ. נתבונן באורך 182.5 אמה  כותל מזרחי (צד חיצוני) ממרכז שער שושן עד כנגד פינה צפון-מזרחית, לפי חשבון בית ראשון. הוא מתחלק ל- 50 אמה עד מגדל מאה, 33 אמות של מגדל מאה (מתוכם אמה אחת של 5 טפחים), פעמים 33 אמות, 33 אמות של שער רחמים (מתוכם אמה אחת של 5 טפחים) ועוד 41.6 ס''מ שהם בדיוק 5/6 אמה של 50 ס''מ– תוצאה של הזזת מרכז שער שושן בית ראשון לעומת בית שני. אכן 182.5=50+32+5/6+33+33+32+5/6+5/6. העודף של כ- 4 ס''מ שהזכרנו לעיל נובע מכך ששתי אמות 5/6 הם ביחס לאמה של 49 ס''מ ואמה אחת ביחס ל- 50 ס''מ. יש כאן תכנון ברור. העודף של 182.5-50=132.5 של כתף הר הבית מעבר לבית המקדש היה אמור להתחלק ל- 4 חלקים של בערך 33 אמות. אבל מתוך 132.5 אמות, 5/6 אמה בולטת מעבר למגדל חננאל. לכן בחרו בשני קטעים של 33 אמות ושני קטעים שיש להם שם של 33 אמות, דהיינו 32 אמות ועוד 5/6 אמה. ולא יכלו לקחת 5/6 אמה של 51 ס''מ כי 41.6 ס''מ הזזת ציר בית שני הוא 5/6 אמה של 50 ס''מ. ועדין אפשר היה לקבוע רוחב שער רחמים בתור 32 אמות של 51 ס''מ ו- 5/6 אמה של 50 ס''מ, דהיינו 16.737 מ'. ויתכן שזה היה הרוחב המתוכנן. אלא שדיוק כזה נמצא מעבר לדיוק מדידה שלנו. נציין שרוחב פתחי השער (דהיינו מרחק בין מזוזות קדומות לבין עמוד תמך אמצעי) הוא 4.07 מ' או כמעט במדויק 8 אמות של 51 ס''מ וגובה הפתח (הוא מרחק מרצפה עד קו המשקוף) 8.12 מ' כנגד 16 אמות של 51 ס''מ (נמדד בתוכנית של שילר). יחס של רוחב לגובה 1:2 כמו בשערי הר הבית המקודש (רוחב 10 וגובה 20 אמה).  לפי מפת וילסון רצפת השער נמצאת בגובה 728.07 מ' מעל פני הים. לפי מדידות שלנו, לגבהים במפת וילסון בכותל מערבי של הר הבית  יש להוסיף כ- 30 ס''מ ולגבהים בצד מזרחי של רחבה העליונה 40 ס''מ. על כן גובה הרצפה שם הוא 728.37-728.47 מ'. אבן השתיה הייתה בולטת 6 ס''מ מרצפת ההיכל לגובה 745.11 מ'. הפרש גבהים ביניהם 16.74-16.64 מ'. יתכן שהפרש גובה הוא בדיוק כרוחב שער רחמים. המופתים שהבאנו מהווים לכאורה ראיה שמבנה שער רחמים הוא מקורי מתחילת בית שני או שהוא נבנה מחדש באופן מדויק על גבי שרידים של מבנה קדום).           

 

            נמשיך את תיאור החומה. "ואת שער הדגים בנו בני הסנאה המה קרוהו ויעמידו דלתתיו מנעוליו ובריחיו" (שם, ג'). נמדוד מנקודה (3) 80 מ' מערבה לאורך חומה צפונית של הר הבית. נקבל נקודה (4) נ.צ. 447.23/805.87. משמע ששער דגים היה בנקודה (4).  נקודה זאת נמצאת 77.695 מ' או 152.34 אמה מזרחית (במערכת קורדינטות של בית שני) ממרכז ק''ק. לעומת זאת עובי שער נקנור נמצא בטווח 149-154 אמות מזרחית למרכז ק''ק. כלומר, מרכז שער דגים מכוון כנגד עובי שער נקנור.

        "על ידם החזיק מרמות בן אוריה בן הקוץ" (שם, ד'). עוד 80 מ' מ-(4) לאורך גבול הצפוני עד נקודה (5) נ.צ. 367.67/797.55. במקום זה צ'רלס וורן מצא שרידים של שער קדום. לפי השערתו זהו שער טדי (הערה 5: ראה בספרו The Temple or the Tomb עמ' 93.  כיום עומד שם שער מרכזי צפוני של הרחבה העליונה עליו מוליך שביל משער החשוך. נציין קשר בין בור מס' 1 של וורן ושער טדי. המשך קו גבול מזרחי של בור מס' 1 צפונה פוגע בדיוק בנקודה (4) והמשך דרומה פוגע במרכז של בית המקדש (הכוונה לבית שני) (ראה קו כחול ממרכז שער טדי דרומה במפת הר הבית). החשבון נעשה על סמך שירטוט של Schick אשר הובא בספר Below the Temple mount in Jerusalem,by S.Gibson, D. Jacobson,1996. נציין גם תאום  בין שער טדי לבין שער ניצוץ ולבין מרכז ק''ק. נקודה (4) נמצאת 2.305 מ' או 4.52 אמות מערבית למרכז ק''ק, מרכז שער הניצוץ לפי חשבוננו נמצא 3.75 אמות מערבית למרכז ק''ק. על כן, אדם הנכנס להר הבית בצד מזרחי של שער טדי, ממשיך בקו ישר אל שער הניצוץ ומוצא את עצמו מול מרכז ק''ק).

            "ועל ידם החזיק משלם בן ברכיה בן משיזבאל" (שם).  הוא בנה 73.075 מ' עד פינה צפון-מערבית של הר הבית (נ.צ. 294.99/789.95) ועוד 6.925 מ' דרומה משם לאורך גבול מערבי. נזכיר שלפי חשבוננו זוית בין גבול מערבי לבין גבול מזרחי של הר הבית שוה 4.58122. על כן גבול מערבי מסובב 10.5522 מעלות נגד כיון השעון. כתוצאה, נקבל נקודה (6) נ.צ. 296.26/783.14.

            "ועל ידם  החזיק צדוק בן בענא" (שם). עוד 80 מ' לאורך גבול מערבי עד נקודה (7) נ.צ. 310.91/704.49.

            "ועל ידם החזיקו התקועים ואדיריהם לא הביאו צורם  בעבדת אדניהם" (שם, ה'). עוד 80 מ' עד נקודה (8) נ.צ. 325.56/625.85.  

            "ואת שער הישנה החזיקו יוידע בן פסח ומשלם בן בסודיה המה קרוהו ויעמידו דלתתיו ומנעליו ובריחיו". נזכיר שלפי חשבוננו שער קיפונוס סימטרי לשער שושן, דהיינו ממרכז שער קיפונוס עד פינה דרום-מערבית של הר הבית המקודש מרחק של 365/2 אמות או 93.075 מ'. מאחר ואורך כותל צפוני ומערבי של הר הבית 260 מ', אז מרחק מנקודה (8) עד פינה דרום-מערבית של הר הבית הוא

2x260-26.925-5x80=93.075                                              מ'

כלומר, נקודה (8) היא מרכז שער קיפונוס. אם שער זה היה ברוחב 10 אמות כפי שכתוב במסכת מידות, אז מזוזה דרומית שלו נמצאת 2.55 מ' דרומה מן המרכז (לאורך כותל מערבי), בנ.צ. 326.024/623.34. לפי מדידה שלנו, גבול דרומי של קשת וילסון במקום חיבורה לכותל מערבי נמצא בנ.צ. 286.677/616.00. קו המחבר שתי נקודות מכוון בזוית 10.567 מעלות. זוית תיאורטית של כותל מערבי היא 10.5522 מעלות. הפרש בין הזויות תוך מרחק של 40 מ' בין שתי הנקודות מתבטא בסנטימטר אחד. לפי נתונים של וורן Section and Elevations of Vaults)) מגבול דרומי של קשת וילסון עד מרכז השער שלשלת מרחק 2.54 מ', כלומר כמעט במדויק 5 אמות של 51 ס''מ. רוחב שער שלשלת כולל שתי מזוזות שלו הוא 5.08 מ' (מדידה עצמית) או כמעט במדויק 10 אמות. אם כן, שער שלשלת מכוון כנגד שער קיפונוס.

כתוב בקדמוניות ט''ו י''א ה' (פסוק 410) "בחלקים המערביים של החומה ניצבו ארבעה שערים: אחד שפניו אל ארמון המלך דרך העמק שבאמצע שנחצה לשם מעבר; שניים אל הפרבר והשער האחרון אל שאר העיר ונפרד (ממנה) על ידי מדרגות רבות (שירדו) למטה אל העמק וממנו שוב למעלה אל מעלה (העיר)". מקובל לזהות שער אחרון עם קשת רובינסון, שני שערים אל הפרבר עם שער ברקלי ושער וורן ושער הראשון עם שער קיפנוס. אין ספק ששער הראשון הוא שעמד על גבי גשר אשר הוזכר במלחמות ו' ו' ב' וגשר זה הינו קשת וילסון. גשר זה חצה את עמק עושי הגבינה והוביל אל לשכת הגזית (אחרי שגלתה לשוק) ואל חומה הצפונית הישנה אשר הגיעה למצודת דוד (ראה מלחמות ה' ד' ב'). ושם היה ארמון של המלך כפי שנראה בהמשך. מאידך, במשנה מסכת מידות מוזכר רק שער אחד במערב, הוא שער קיפונוס. ואין כאן קושי. המשנה מתארת שערי הר הבית המקודש של 500 על 500 אמה. ואילו שערים שהזכיר פלביוס נמצאים בכותל מערבי חיצוני.

             מה מקור השם "ישנה" וכן "קיפונוס" ומה הקשר ביניהם? בירמיה כ''ו י' מוזכר שער החדש ויונתן תרגם "תרע מדינחאה"- שער מזרחי. ולפי ירושלמי עירובין פ''ה ה''א זהו אחד משבעה שמות של שער נקנור. אם כן, שער ישנה הוא הפך ממזרח- מערב. וגם ממוקם באופן סימטרי: ממרכז שער שושן ושער נקנור 93.075 מ' או 365/2 אמות הארץ לכותל הצפוני וכן ממרכז שער הישנה אל כותל הדרומי. וכן בפרוש מילים קרחת וגבחת רואים את הקשר. לגבי צרעת הבגד (ויקרא י''ג נ''ה) קרחת הוא בגד ישן וגבחת בגד חדש (ראה רש''י שם). ומצד שני אצל אדם קרחת זהו חלק אחורי של ראש וגבחת חלק קדמי (רש''י שם מ''א). ואחור זהו מערב, קדם-מזרח. אם כן חדש זהו מזרח וישן -מערב. לגבי מילה "קיפונוס" תוי''ט במדות פ''א מ''ג מביא פרוש הבא: "קיפונוס. לא ידעתי לו טעם. ובשלטי הגבורים חשב שהוא לשון יון ענינו עבודת הגן. שאפשר שהיה שם גן של ורדים מחוץ להר הבית וכאותו ששנינו בפ''ב דמעשרות משנה ה'". אכן אנו נראה בהמשך שגינת הורדים היא גן המלך היתה ליד מגדל דוד בתוך תחום של בריכת חזקיה כנגד שער זה.

            נמשיך בתיאור החומה. "על ידם החזיק מלטיה הגבעני וידון המרנתי אנשי גבעון והמצפה לכסא פחת עבר הנהר" (נחמיה ג' ז'). נמדוד 80 מ' משער הישנה דרומה אל נקודה (9) נ.צ. 340.21/547.20.

            "על ידו החזיק עזיאל בן חרהיה צורפים" (שם, ח'). נמדוד 13.075 מ' עד פינה דרום-מערבית של הר הבית המקודש (נ.צ. 342.60/534.35) ועוד 66.925 מ' מזרחה לאורך גבול דרומי המקודש. נקבל נקודה (10) נ.צ. 408.40/546.60. נקודה זאת נמצאת כנגד מרכז שער הכפול החיצוני. על כן, כאן היה מרכז שער חולדה מערבי פנימי. (הערה 6: חישוב מדויק. מזוזה מזרחית של שער הכפול לפי מדידתנו נ.צ. 429.61/464.74. לפי ד. חן ור. שני (Muqarnas 18, עמ' 9) רוחב פתחי שער הכפול 5.10 מ' כל אחד, ומזוזה בין הפתחים 1.70 מ' (נתונים של שיק ושל קונדר). על כן מרכז השער נמצא 5.95 מ' מערבית למזוזה הנ''ל. כותל הדרומי שם מסובב כ- 10.3 מעלות נגד כיוון השעון. על כן מרכז שער הכפול נ.צ. 423.76/463.68. קו המחבר נקודה (10) עם מרכז ק''ק של בית שני מכוון בזוית 10.277 מעלות מערבה מצפון. המשכו של הקו  דרומה חוצה את שער הכפול 32 ס''מ מערבה ממרכז השער. הקו שמחבר מרכז שער הכפול עם נקודה (10) מכוון בזוית 10.494 מעלות, כמעט מקביל לכיוון של כותל מערב(.

            "ועל ידו החזיק חנניה בן הרקחים ויעזבו ירושלים עד החומה הרחבה" (שם). נמדוד עוד 80 מ' או 93.075 מ' מפינה דרום-מזרחית של הר הבית המקודש ונגיע לנקודה (11) נ.צ. 487.04/561.25. נקודה זאת נמצאת כנגד  מרכז שער משולש . על כן, כאן היה מרכז שער חולדה מזרחי פנימי (הערה 7: חישוב מדויק. מזוזה מערבית של שער מערבי של שער משולש נ.צ. 494.36/476.18. מזוזה מזרחית של שער מזרחי 510.00/478.91. ממוצע 502.18/477.55. זוית מנקודה זאת לנקודה 11 היא 10.252 מעלות, כמעט במדויק כמו זוית 10.277 מנקודה 10 למרכז ק''ק).  מהי חומה הרחבה? יתברר בהמשך שזהו קטע של כותל הדרומי עד פינה דרום-המזרחית, נקודה (12) נ.צ. 578.30/578.54.

            כאן בא עיקר חידושנו. כפי שהקדמנו שפרק ראשון,  המשך הבניה לא היה בחומה הרחבה  (פשר חומה זאת יתברר בהמשך, בסוף פרק 3.5) אלא חזרו אל שער הישנה הוא שער קיפונוס ובנו את החומה הצפונית של העיר. לפי העקרון של הקפה בצד ימין. וכל קטע 1000/6 אמת הארץ או 85 מ'.

 

3.2. משער הישנה עד קברי דוד

 

            נביא את הפסוקים מנחמיה ג' ט'-ט''ו. "על ידם החזיק רפיה בן חור שר חצי פלך ירושלם (85 מ').  ועל ידם החזיק ידיה בן חרומף ונגד ביתו (85 מ')  ועל ידו החזיק חטוש בן חשבניה (85 מ'). מדה שנית (פעמים 85 מ') החזיק מלכיה בן חרם וחשוב בן פחת מואב ואת מגדל התנורים. ועל ידו החזיק שלום בן הלוחש שר חצי פלך ירושלם הוא ובנתיו (85 מ'). את שער הגיא החזיק חנון וישבי זנוח המה בנוהו ויעמידו דלתתיו מנעליו ובריחיו ואלף אמה בחומה עד שער השפות. ואת שער האשפות החזיק מלכיה בן רכב שר פלך בית הכרם הוא יבננו ויעמיד דלתתיו מנעליו ובריחיו. ואת שער העין החזיק שלון בן כל חזה שר פלך המצפה הוא יבננו ויטללנו ויעמידו דלתתיו מנעליו ובריחיו ואת חומת ברכת השלח לגן המלך ועד המעלות היורדות מעיר דויד". נראה שבוני שער הגיא ושער האשפות לא בנו את החומה. אם כן אלף באמה הוא סכום של ששה קטעים מרפיה בן חור עד שלום בן הלוחש, שניהם שרי חצי פלך ירושלם. אם שער האשפות הוא לסוף ששה קטעים אז שער הגיא שקודם לו, הוא בתחילת קטע שבנה שלום בן הלוחש. ואז מגדל התנורים קודם לו קטע אחד והוא באמצע מידה שנית שבנו מלכיה וחשוב. שער אשפות לפי חשבון מרחקים יוצא מזרחית לבריכת חזקיה. לעיל זיהינו ברכת השלח עם בריכת חזקיה (חלק דרומי שלה). נזכיר שלפי עיקר חשבון שלנו של עי ובת אל (ראה הערה 18 המאמר על גבולות הר הבית) , עין עיטם נמצאת על ציר בית המקדש בקצה מערבי של ירושלים לע''ל (ראה גליון צפוני(253KB) ) , וזה יוצא בפינה צפון מערבית של בריכת חזקיה. לכן הנחנו ששער העין נמצא מולו בגבול מערבי של העיר. על כן חומת ברכת שילוח נמשכת משער אשפות עד שער העין. ועיר דוד במקום מצודת דוד. לכן יש להניח ששלון בן כל חזה בנה שני קטעים: חומת בריכת השלוח והקטע משער העין עד עיר דוד. ויתכן שהשאירו את הקטע בין שער אשפות ושער העין פרוץ, כמעשה של דוד (ראה סנהדרין ק''א ע''ב). ושלון בנה קטע של 85 מ' משער העין עד  המעלות היורדות מעיר דויד.

כדי לעשות חשבון מדויק של מסלול הבניה יש לדעת תוואי של חומה צפונית הישנה. לפי תיאור של יוספוס במלחמות ה' ד' ב', החומה הצפונית התחברה לכותל מערבי באזור קשת וילסון. ברור שהקשת היתה בתחום העיר הנצורה גם אחרי נפילת חומה השניה. על כן חומה הישנה עברה צפונית לקשת. לא ידוע על שרידים של החומה שם. בצד מערבי החומה התחברה אל מגדל דוד. התוואי הטבעי של החומה בין מגדל דוד לקשת וילסון עובר ברחוב דוד ורחוב שלשלת. מצפון לקו זה היה נחל צולב, מכשול טבעי לפני החומה. מאידך, בחפירות אביגד נמצאו שרידים של חומה ישראלית דרומה מרחוב השלשלת. שרידים צפוניים נמצאים כ- 40 מ' דרומית מרחוב שלשלת ויש שם עוד בליטה דרומה, עד 100 מ' דרומית מרחוב שלשלת. בליטה זאת לתוך העיר פנימה לא הגיונית. יהושע עציון בספרו "תנ''ך האבוד" (עמ' 125) טוען שאלו הם שרידים של חומה יבוסית. אכן לפי חשבוננו (אנו נדון בהם בהמשך) גבול היבוסי מנגב עבר בקו רוחב 527, הוא קו רוחב של אמצע שער ברקלי ואמצע כותל מזרחי של מגדל דוד. רואים במפה ששרידים הצפוניים נמצאים על קו רוחב זה. בליטה דרומה היתה בליטה חיצונית של העיר היבוסית! באותם שרידים צפוניים נמצאו גם שרידים של חומה ומגדל חשמונאים. יתכן שהם נבנו בתור קו הגנה נגד אקרא היונית אשר היתה בצפון, באזור בריכת חזקיה ולהבדילה מן העיר כפי שכתוב בספר מכבים י''ב ל''ו-ל''ח.

            לעיל הסברנו משמעות המיוחדת של שער קיפונוס. שער זה הוא סימטרי לשער שושן. מתוך חשבון של חלוקת הר הבית בין יהודה ובנימין (הערה 8: ראה קו אדום רצוף במפה. קו זה מחלק את שטח הר הבית המקודש של 500 על 500 אמות באופן שוה בין יהודה ובנימין. הסבר לקו זה נכתוב במקום אחר), התברר שציר שער שושן (קו העובר דרך מרכז השער בניצב לכותל מזרחי) הוא קו חלוקה מזרחי בין יהודה ובנימין. לעומת זאת ציר שער קיפונוס (קו העובר דרך מרכז השער וניצב לכותל מערבי) הוא קו חלוקה מערבי. למעשה גבול בין יהודה ובנימין מערבית להר הבית מתפצל לשני קוים (ראה קו אדום וירוק במפה  של תחום 3000 אמה). קו צפוני הוא ציר בית המקדש (והמשך ציר שער שושן) וקו דרומי הוא גבול יבוסי מנגב. לפי הבנתנו, ירושלים בגבולות חומה הישנה תפסה בעיקר את חצי הדרומי של יהודה. משום כך העיר הצטמצמה בערך לרבע דרום-מערבי של ריבוע של 3000 על 3000 אמה של קדש אשר מתואר ביחזקאל מ''ב ט''ו-כ וסביבו מגרש 50 אמה (יחזקאל מ''ה ב'). דבר זה מסביר מדוע הר הבית לא נמצא במרכז העיר אלא בפינה צפון-מזרחית שלו. חומה צפונית של ירושלים מהווה מעין פשרה בין שני קוים אלו וציר שער קיפונוס. על כן העברנו קו משוער של חומה הצפונית לאורך ציר השער, 4 קטעים של 85 מ' עד מגדל תנורים ומשם מערבה בקו מזרח-מערב מדויק במקביל לגבול יבוסי. מתברר שמגדל התנורים נמצא בצומת מרכזית של ירושלים בה נפגשים רחוב השלשלת ורחוב היהודים. רחוב השלשלת ובהמשך רחוב דוד זהו ציר מזרח-מערב משער יפו ואילו רחוב היהודים ובהמשך צפונה רחוב בית הבד זהו ציר צפון-דרום משער שכם. המשך החומה מערבה משתלב ברחוב דוד. שער עין אשר העמדנו אותו על קו החומה בגבול מערבי של תחום 3000 אמה הנ''ל, נמצא בסוף רחוב דוד. הגבול מערבי הנ''ל כפי שרואים, תואם את גבול מערבי של בריכת חזקיה וקו חומה מזרחית של קשלה וגן ארמני. לכן נראה שזהו  גבול "טבעי".  

            אומנם ישנו אי דיוק לגבי מקום משוער של חיבור חומה הצפונית לכותל מערבי. ציר שער קיפונוס עובר 2.55 מ' צפונה מגבול דרומי של קשת וילסון. ואילו חומה בפועל כנראה עברה לאורך גבול צפוני של הקשת, אשר רוחבה 14.65 מ'. ויש לציין שבהמשך מערבה, שלב הבא של קשתות מתפצל לשנים, דרומית וצפונית, כל אחת כחצי רוחב הקשת המזרחית. יתכן שבזמן נחמיה היתה שם רק קשת דרומית וחומה עברה מתחתיה, סמוך לציר השער. מערבית יותר, קשתות פונות דרומה ובמרחק כ- 70 מ' מכותל מערבי, ציר השער עובר צפנית לקשתות. לכן אין סתירה בין מבנה הקשתות וקו החומה לאורך הציר השער.

            כעת אנו יכולים לחשב קורדינטות של קצוות הקטעים. מאחר ואנו ממספרים גם דילוגים, אזי שער הישנה מקבל מספור נוסף (13). נזכיר שזאת נקודה (8) נ.צ. 325.56/625.85. ממנה אנו מודדים 85 מ' לאורך ציר שער קיפונוס 10.5522 מעלות דרומה מן המזרח. מקבלים סוף קטע של רפיה בן חור נקודה (14) נ.צ. 242.00/610.28. משם 85 מ' באותו כיוון החזיק ידיה בן חרומף, עד נקודה (15) נ.צ. 158.43/594.71. חטוש בן חשבניה עד נקודה (16) נ.צ. 74.87/579.15. קטע אחד של מלכיה וחשוב עד  מגדל תנורים נקודה (17) נ.צ. 171991.31/131563.58. קטע שני שלהם עד שער הגיא 85 מ' מערבה, נקודה (18) נ.צ. 906.31/563.58. (מכאן ולהלן אנו משמיטים קידומת 171/131).

            (הערה 9 (אפשר לדלג בקריאה ראשונה): מה היא סיבת שינוי כיוון הכותל בין מגדל התנורים לבין שער האשפות? רמז לכיוון עתידי של בית שלישי אשר יכוון מזרח-מערב גאיוגרפי? כמו הכיוון של שער נקנור. ועוד, מגדל התנורים מרמז על תנור עשן בברית בין הבתרים. אכן מול שער אשפות היתה תופת ובה היו מעבירין למולך, כעין ברית בין הבתרים. לפי חשבוני ברית בן הבתרים היתה במוצאי י''ד ניסן שנת 2019. השמש שקעה אז בכיוון מערב מדויק. האם כאן, בגיא בין הינום היתה ברית בין הבתרים? וזה מה שכתב רש''י (בראשית ט''ו י''ז) ד''ה "והנה תנור עשן" –רמז לו שיפלו המלכויות ע''א בגיהנום. והשם "הנום" הוא חילוף "המון", כנגד גי המון גוג. והרי פתח גיהנום לפי חשבוני נמצא מול שער האשפות. ושער הגיא נקרא כך כי הוא מוביל אל גי בין הנום. ועוד ראיה שברית בין הבתרים היתה בירושלים. נאמר לאברהם שם "ודור רביעי ישובו הנה", דוקא למקום זה. וזהו כלב בן חצרן בן פרץ בן יהודה אשר כבש את ירושלם ("וילחמו בני יהודה בירושלים וילכדו אותה וכו'" (שופטים א' ח'). ואחר כך "וילך יהודה אל הכנעני היושב בחברון". וכבוש חברון היה בסוף שבע שנים כפי שמוזכר ביהושע י''ד י''ב—ט''ו)).

            מכאן בנה שלום בן הלוחש 85 מ' עד שער האשפות, נקודה (19) נ.צ. 821.31/563.58. נקודה זאת נמצאת בפינת רחוב דוד ורחוב הנוצרים. זהו מקום סביר לשער. את שער העין העמדנו  בקו אורך גבול מערבי של 3000 אמה, נקודה (20) נ.צ. 759.71/563.58.

            (הערה 10: נביא כאן חשבון מפורט של תחום הקדש של 500 על 500 קנים שהם 3000 אמה אשר הזכרנו לעיל. מרכז הריבוע נמצא במרכז שער מזרחי חיצוני של חצר החיצונה, שם התחילה מדידה של חומת חצר החיצונה (יחזקאל מ' ג') ומשם מדדו את תחום 500 קנים סביב (שם, מ''ב ט''ו). מקום זה נמצא 286 אמה מזרחית למרכז קדש הקדשים (10 אמות של קדש הקדשים , 2 אמות טרקסין בבית שלישי (ראה פסוק מ''א ג' ורש''י שם), 40 היכל, 6+11+5 עד פני אולם (מדות פ''ד מ''ז), 100 חצר הפנימית, 6 עובי כותל, 100 חצר חיצונה, 6 עובי הכותל). אם נערוך חשבון זה עבור בית שני כאשר מרכז ק''ק הוא נ.צ. 379.64/705.22 וציר הבית מכוון 5.971 מעלות צפונה ממזרח, נקבל מרכז בנקודה (0) נ.צ. 524.71/720.39. סימנו אותה על גבי גליון צפוני(253KB) . גבול מערבי של 3000 אמה נמצא בקו אורך 171759.71 וגבול דרומי בקו רוחב 130955.39).

            (הערה 11: נתאר כאן בקצרה את מהלך לילי של נחמיה (ב' י''ג-ט''ו). "ואצאה בשער הגיא לילה ואל פני עין התנין ואל שער האשפת  ואהי שבר בחומת ירושלם אשר הם פרוצים ושעריה אכלו באש. ואעבר אל שער העין ואל ברכת המלך ואין מקום לבהמה לעבר תחתי. ואהי עלה בנחל לילה ואהי שבר בחומה ואשוב ואבוא בשער הגיא ואשוב". נחמיה יצא דרך שער הגיא והלך בקטע (18)-(19) מבחוץ, לשער אשפות. והיה "שובר בחומה" בחומת בריכת שילוח בקטע (19)-(20). והיה מבטל בכך את מעשה שלמה אשר בנה שם בית בת פרעה ו"סגר פרץ עיר דוד". בנקודה (20) הוא פנה צפונה ו"עלה בנחל" עד עין עיטם בפינה צפון-מערבית של בריכת חזקיה. יתכן שחלק ממי עין עיטם זרמו דרומה לשער העין מתחת לאדמה בתעלה שעשה חזקיה ומשם מערבה לעיר דוד. בעין עיטם נחמיה פנה מזרחה לאורך ציר בית המקדש והיה "שובר בחומה" צפונית של בריכת חזקיה, שגם אותה בנה שלמה. שם הוא פנה דרומה ושב אל שער אשפות וחזר מזרחה לשער הגיא ושב העירה. עין תנין שעל פניו הלך נחמיה, לפי דעתי זהו חלק ממי עין עיטם אשר זרמו בנחל צולב מזרחה (או שמא אחרי שחזקיה סתם את המעין, הם זרמו מתחת לאדמה). השם עין תנין מרמז על  פרעה "התנין הגדול" משום שליד שער אשפות היה בית בת פרעה (ראה דיון בהמשך, ליד נקודה (22)). וגם על שם גיחון הוא הנחש הוא התנין. והוא עין מי נפתוח המוזכר ביהושע י''ד ט' וי''ח ט''ו. כאן שמואל ודוד סברו בתחילה לבנות את בית המקדש (ראה זבחים נ''ד ע''ב "סבור למבנייה בעין עיטם"). ומדוע מקום זה נקרא עין עיטם?  הרי עיטם מוזכר בדה''ב י''א ו' והוא נמצא כנראה ליד בית לחם? ויש לומר שבזמן בית שני, אמה עליונה מבית לחם הגיעה לבריכת חזקיה. ומי עין עיטם התערבו עם מי נפתוח. לכן העתיקו את השם "עין עיטם" לכאן).

             לפי השערתנו, שלון בן כל חזה בנה קטע (20)-(21) באורך 85 מ' משער העין עד "המעלות היורדות מעיר דויד" (נחמיה ב' ט''ו). זהינו עיר דוד עם מגדל דוד (הערה 12: זוהי עיר דוד במובן צר. במובן רחב עיר דוד כוללת גם את בריכת חזקיה ויתכן אף אזור גן ארמני). בחפירות באזור מגדל דוד ודרומה נתגלו מגדלים נוספים- אמצעי ודרומי, וקטעים של חומה הראשונה המשוערת (ראה מפה במאמר של סיון וסולר (4)). אם נבנה מעגל ברדיוס 85 סביב נקודה (20) אז מעגל זה יחצה את החומה הראשונה ליד נקודת חיבורה אל מגדל האמצעי (נקודה 6 במפה). לפי מפת צילום אוויר קורדינטות שלה 698.5/506.75. ממנה ל-(20) מרחק 83.5 מ'. מעניין שציר שער קיפונוס חוצה את החומה סמוך לאותה נקודה. על כן הגדרנו נקודה (21) בתור נקודת מפגש של ציר השער עם המעגל. קבלנו נקודה (21) נ.צ. 695.06/508.4. נקודה זאת נמצאת ליד מקום חיבור של חומה W110 למגדל אמצעי. (הערה 13: נביא כאן חשבון מתמטי מאלף לגבי צירים של בית ראשון. נזכיר שלפי הבנתנו מרכז ק''ק של בית ראשון היה בנ.צ. 379.68/704.89. ציר הבית שהוא ציר שער שושן היה מכוון בזוית 6.1975. מרכז שער שושן של בית ראשון נ.צ. 563.22/724.82. מרכז שער קיפונוס נ.צ. 325.91/625.30. מרכז הריבוע של 3000 אמה נ.צ. 524.68/720.64. גבול מערבי של 3000 אמה 759.68. נעביר דרך מרכז שער קיפונוס, קו מקביל לציר שער שושן. הוא יחצה את גבול מערבי בנקודה 759.68/563.82 (בכל החשבונות אנו משמיטים קילומטרים). נסמן אותה ע''י 20'. נקודה זאת כמעט זהה ל- (20)-759.71/563.58. כעת נעביר דרך מרכז שער קיפונוס, קו ניצב לכותל מערבי של הר הבית אשר מכוון בזוית 6.1975+4.5812=10.7787 מעלות. זהו ציר שער קיפונוס של בית ראשון. ציר שער שושן וציר שער קיפונוס נפגשים בנקודה 227.64/796.97, 62.04 מ' מערבית לגבול מזרחי של הריבוע של 3000 אמה. יתכן שנקודה זאת היא "עין שמש" (יהושע ט''ו ז'). אם נמדוד משם 3000 אמה מערבה, נקבל קו אורך 697.64. קו אורך זה חוצה את ציר שער קיפונוס בנקודה (21')  697.64/505.70 (ראה פתרון חלופי בצבע תכלת במפה). נקודה זאת סמוכה ממש לנקודת חיבור חומה ראשונה למגדל אמצעי  698.5/506.75. המופת הוא שהמרחק בין (20') לבין (21') הוא 85.017 מ', כמו אורך אחיד של קטעי החומה). מתוך חשבוננו זה יוצא שמעלות עיר דוד ירדו ממגדל דוד אל מגדל האמצעי על גבי חומה הראשונה.

            כתוב במלחמות ה' ד' ב' "והחומה השניה החלה על יד השער הנקרא גנת אשר לחומה ראשונה והקיפה את רוח הצפון לבד והשתרעה עד מצודת אנטוניה. וראשית החומה השלישית היה מגדל הפיקוס ומשם לרוח צפון השתרעה עד מגדל פספינוס". שער גינת מרמז על גינה. אכן, מנחמיה ג' ט''ו אנו לומדים שגן המלך היה סמוך לחומת ברכת השלח לצד צפון. מאידך, במסכת מעשרות פ''ב מ''ה מוזכרת גנת ורדים שהיתה בירושלים ושהיתה חייבת במעשרות. ובב''ק פ''ב ע''ב כתוב שאין עושים בירושלים גנות ופרדסות חוץ מגנת וורדין שהיו מימות נביאים הראשונים. על כן בהכרח גינת הורדין היא גן המלך. מאחר וגן המלך היה סמוך לחומת השלוח, נראה לזהות את שער גינת עם שער העין (ראה ) גליון צפוני. שער זה גם מוזכר במלחמות ה' ז' ג' "וחיל שמעון התיצב במבוא העיר על יד מצבת יוחנן הגדול וסכך על החומה עד השער אשר משם באו המים אל מגדל הפיקוס". מדובר שם בחומה שניה טרם כיבושה ומים למגדל הפיקוס באו בודאי מבריכת חזקיה. לפיכך חומה השניה התחילה בנקודה (20) ומשם הלכה צפונה לאורך גבול מערבי של ירושלים 3000 אמה בדומה לחומה מזרחית של גן ארמני. חומה זאת כנראה הגיעה עד חומה צפונית של עיר העתיקה (השתמרו שם אבנים "הרודיאניות" באזור שער שכם) ומשם מזרחה לאורך החומה עד כניסה ל"מערת צדקיהו" ומשם בזוית 45 מעלות בכיוון דרום-מזרחי אל מצודת אנטוניה. ויש לזהות אותה עם חומה שבנה מנשה "ואחרי כן בנה חומה חיצונה לעיר דויד מערבה לגיחון בנחל ולבוא בשער הדגים" (דה''ב ל''ג י''ד). רק בזמן מנשה חומה זאת הגיעה עד שער הדגים. ויתכן שיש להזיז את החומה השניה 50 אמות מערבה לכלול את 50 אמות של מגרש העיר במערב לפי יחזקאל. ואז המשך קו חומה זאת פוגע בדיוק באמצע כותל מזרחי של מגדל דוד.

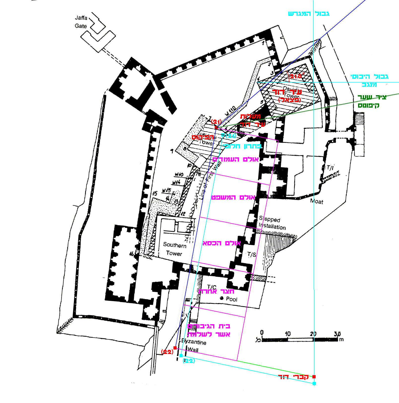
לגבי חומה שלישית, מקובל לזהות את החלק הצפון-מערבי שלה עם קו חומה הטורקית. חומה זאת מכוונת בדיוק 45 מעלות מערבה מן הצפון. המשך קו החזית של חומה זאת (דהיינו צד חיצוני) פוגע בפאה צפונית של מגדל אמצעי. על כן זהו מגדל הפיקוס. ואז מגדל דוד הוא מגדל "פצאל" אשר השתמר עד גובה 20 מ' או 40 אמה. ואת מגדל מרים יש להעמיד במקום בית בת פרעה בקטע (19)-(20), סמוך לנקודה (19).

            כעת נדון במיקום ומידות מיוחדות של מגדל דוד. לפי מפת צילום אויר, מרכז הגג של המגדל (מפה זאת מראה את הגג של התוספת המאוחרת) נמצא בנ.צ. 725.0/523.0. לפי אותה מפה המלבן של הגג מסובב כ- 21.8 מעלות נגד כיון השעון. המגדל מקורי בגובה כ- 20 מ' נמדד ע''י  Johns (5). מידות של חלק עליון של מגדל הם: צד צפוני 21.4 מ' (לעומת 42 אמות של 51 ס''מ שהם 21.42 מ'), וצד מזרחי- 17.12 מ' או בדיוק 4/5 של 21.4 מ'. גובה המבנה 19.85 מ' (לעומת 39 אמות  שהם 19.89 מ'). יחס 4:5 של מידות המלבן מותאם לזוית הסיבוב 21.8 באופן שפינה דרום-מערבית של מגדל נמצאת בדיוק בקו רוחב של מרכז כותל מזרחי של המגדל. אכן  tan21.8=0.39997»2/5. מתוך נתונים שהבאנו יוצא שמרכז כותל מזרחי של המגדל בחלקו העליון נמצא בנ.צ. 734.93/526.97. גבול מערבי של מגרש 50 אמה הנוסף על ריבוע של 3000 אמה, עובר לפי חשבון בית שני בקו אורך 734.2 (בית ראשון 734.18). בית שלישי עתיד להיות מכוון לפי רוחות השמים. על כן לפי חשבון בית שלישי, מרכז הריבוע יהיה 286 אמות מזרחה ממרכז קדש הקדשים וגבול מערבי של המגרש יעבור בקו אורך 735.02. בגבולות דיוק מפת צילום אויר מספר זה זהה למספר 734.93 לעיל. לפי הבנתנו "כתף היבוסי מנגב" (יהושע ט''ו ח') נמצא בנקודה בה גבול בין יהודה ובנימין פוגע בכותל מערבי חיצוני של הר הבית (ראה גליון צפוני) (הערה 14: לפי הבנתנו גי בן הנם הוא עמק עושי הגבינה אשר עלה לאורך כותל מערבי צפונה עד כנגד ציר בית המקדש ומשם מערבה לבריכת חזקיה לאורך נחל צולב). נקודה זאת נמצאת בהמשך גבול דרומי של הר הבית המקודש. לפי חשבון בית שני, פינה דרום-מערבית של הר הבית המקודש נמצאת בנ.צ. 343.31/533.87. המרחק משם עד כותל מערבי חיצוני (צד חיצוני) הוא 40.20 מ' (על פי מדידות של מודדי שומרון). על כן כתף יבוסי מנגב לפי חשבון בית שני נמצא בנ.צ. 303.09/526.99. קו רוחב 526.99 זהה לקו רוחב 526.97 שקבלנו לעיל. מרכז שער ברקלי נמצא בנ.צ. 303.04/527.22, 23 ס''מ צפונה מכתף היבוסי.  הראנו לעיל ששרידים של חומה שמצא אביגד נמצאים בערך בקו רוחב זה. לפי דעתנו קו זה מהוה גבול דרומי של יבוסי. גבול זה נמשך עד מגדל דוד. על כן זהינו שלשה מופתים: 1) מרכז כותל מזרחי של מגדל דוד נמצא בקו רוחב של גבול יבוסי מנגב; 2) קו אורך של אותה נקודה נמצא בגבול מערבי עתידי של ירושלים הקדושה עם תוספת מגרש 50 אמה; 3) אורך ורוחב של מגדל דוד הוא 5:4 והוא מסובב בזוית 21.8 על מנת שפינה צפון-מערבית שלו תהיה בקו רוחב של מרכז כותל מזרחי (כל הטענות מתייחסות למידות הגג של מגדל המקורי ללא תוספת מאוחרת של צלבנים או מוסלמים). (הערה 15: גם במידות הגובה של מגדל יש מופת. תחתית המגדל נמצאת בגובה 765 מ' שהוא 1500 אמות, כגובה כתפיים של אדם אשר אמה שלו שוה 500 אמות של הר הבית. זהו גם גובה בו יוצא המעין עין עיטם בבית לחם. גובה גג של המגדל 39 אמות של 51 ס''מ מעל 765 מ'. לעומת זאת גובה אבן השתיה הוא 39 אמות מתחת לגובה של 765 מ').

            מאחר והזכרנו את ירושלים היבוסית, נגדיר את גבולותיה. פינה דרום-מזרחית שלה הוא כתף היבוסי מנגב. פינה דרום-מערבית באמצע כותל מזרחי של מגדל דוד. גבול מזרחי שלה הוא כותל מערבי חיצוני, גבול צפוני עובר 500 אמות של 51 ס''מ צפונה מגבול דרומי וגבול מערבי הוא גבול מערבי של מגרש 50 אמה כפי שהזכרנו. נשים לב שגבול מזרחי של ירושלים היבוסית כמעט זהה להיטל של הר הבית המקודש על כותל מערבי חיצוני. אכן אורך גבול מערבי של הר הבית המקודש הוא 260 מ' ו-260cos10.5522=255.60 לעומת 255 מ' שהם 500 אמות של 51 ס''מ. שטח של ירושלים היבוסית 139040 מ''ר או 603474 א''ר של 48 ס''מ (הערה 16: אם נעשה חישוב לפי כותל מערבי תיאורטי במרחק אחיד של 40 מ' בגבול מערבי של הר הבית המקודש, אז נקבל שטח 603542 א''ר, כמעט במדויק מניין יוצאי מצרים שהוא 603550). זה קרוב לשטח הר הבית המורחב -141120 מ''ר. בית אל של אברהם תפס 500 על 500 אמה במערבה של ירושלים היבוסית, מגבול מערבי של מגרש עד סמוך למגדל תנורים (המרחק ביניהם 257.1 מ' לעומת 500 אמות שהם 255 מ'). לפי גמרא בזבחים נ''ד ע''ב, שמואל ודוד סברו לבנות בית המקדש בעין עיטם. לפי דעתי הם התכוונו לשטח של 100 על 100 אמה בצד מערבי של בית אל בין שני צירים היוצאים מערבה ממרכז קדש הקדשים (אחד ניצב לכותל מזרחי ואחד ניצב לכותל מערבי של הר הבית). במקרה זה הר הבית של 500 על 500 אמה היה מוחלף בבית אל. עי הייתה סימטרית לבית אל ביחס למרכז של ריבוע של 3000 אמה).

    נמשיך תיאור החומה מנקודה (21).  

            "אחריו החזיק נחמיה בן עזבוק שר חצי פלך בית צור עד נגד קברי דויד ועד הברכה העשויה ועד בית הגבורים". אנו נתאים קצה קטע זה של 85 מ' לשרידי חומה הראשונה אשר נמצאו בחפירות בקשלה. חומה זאת מכוונת בערך בזוית 10.55 כמו כותל מערבי רק בכיון הפון, מזרחה מן הצפון. על כן נקודה (22) נ.צ. 679.49/424.83. בקטע זה אנו נעמיד חמשה מבנים המוזכרים בספר מלכים א' ז' פסוקים ו'-ח'. ואלו הם מצפון לדרום: אולם העמודים, אולם המשפט, אולם הכסא, חצר האחרת ובית המלך שלמה. כל מבנה 30 על 50 אמה כאשר הצד הקצר צמוד מבפנים לחומת העיר (21)-(22). כדי להתאים 5 מבנים לאורך 166.66 אמות, נגדיר רוחב כל מבנה בתור 33.33 אמות כאשר עודף 3.33 אמה הוא עובי כתלים. על סמך הפסוק "הנה מטתו שלשלמה ששים גיבורים סביב לה מגברי ישראל", נזהה את בית הגיבורים עם בית המלך. בריכה העשויה היתה כנראה בשטח חצר האחרת, בין בית המלך לאולם הכסא. בשטח זה אכן נמצאה בריכה. שלש אולמות: העמודים, המשפט והכסא תפסו מלבן של 100 על 50 אמה כנגד בית יער לבנון אשר גם הוא התחלק לשלשה חלקים שוים. את בית יער לבנון העמדנו על שפה מערבית של בריכת חזקיה בתחום 50 אמה של מגרש העיר. פינה צפון-מזרחית של בית יער נמצאת בנ.צ. 759.71/640.38 על ציר בית המקדש בזוית 5.971 מעלות היוצא ממרכז ק''ק , פינה דרום-מזרחית בנ.צ. 759.71/589.74, על ציר של 10.5522 היוצא ממרכז ק''ק ניצב לכותל מערבי של הר הבית. באופן שבית יער הלבנון נמצא כולו כנגד מרכז קדש הקדשים. בית בת פרעה עם חצרה אמורים היו להיות צמודים מדרום לבית יער לבנון, פינה דרום-מזרחית של בית בת פרעה בנקודה (20) נ.צ. 759.71/563.59. ואז היה נוצר מערך של 50  על 150 אמה כנגד המערך מאולם העומדים עד בית המלך. (אכן הפרש 640.38-563.59=76.79 שוה 150.5 אמות). אבל מאחר ובת פרעה לא נמצאה ראויה לכך, ביתה וחצרה הוזזו מאה אמות מזרחה. וגן המלך הוא גן עדן המקורי בשטח בריכת חזקיה הפך לגן של מלכה. שלמה אף בנה חומה לכל אורך קטע (19)-(20) ובזה סגר פרץ עיר דוד, אותו השאיר דוד למעבר שבטים (ראה סנהדרין ק''א עמ' ב').

            את קברי דוד נעמיד נגד בית הגיבורים, דהיינו נגד נקודה (22) בניצב לקטע (22)-(21) על גבול מערבי של מגרש העיר (כדי שלא יהיה צורך לפנות את הקבר לעתיד לבוא). מכאן קברי דוד נמצאים בנ.צ. 734.21/414.64 (עם קילומטרים זהו 171734.21/131414.64), בערך במרכז החצר של תחנת המשטרה בקישלה.  בדיקות ע''י רדאר שנערכו שם ע''י אורי בסון  ב- 18/10/01 הראו שיש שם חלל תת קרקעי בעומק 5-8 מ' (770-767 מ' מעל פני הים) אשר מרכזו בערך בנ.צ.  734/412.5. (הערה 17: לפי פתרון חלופי (ראה מפה) קבר דוד נמצא בנ.צ. 734.18/412.21. קרוב ביותר לחלל). מרכז מערת קבורת אבות במערת המכפלה נ.צ.  160555.03/103611.17 (מחושב על סמך שירטוט של זאב יבין במאמרו "המערכת התת קרקעית במערת המכפלה" בתוך "ישראל-עם וארץ"- שנתון מוזיאון הארץ, ספר ב'-ג', וקורדינטות של המבנה אשר בידי). מרכז הכיפה של קבר רחל (נקודה ממשלתית 435T) נ.צ. 169230.76/125199.56 . אזימות קו גיאודטי ממערת המכפלה לקבר רחל 21.84036 מעלות. אזימוט של קו המחבר מרכז מערת המכפלה עם מקום מחושב של קבר דוד הוא 21.850 מעלות. כבר הזכרנו לעיל שמגדל דוד מסובב גם כן בזוית של בערך 21.8 מעלות, אבל בכיוון הפוך, צפון-מערבה. עוד הזכרנו לעיל שבחפירות בקישלה בשנות 2000-2001 נתגלתה נקבת מים תת-קרקעית בגובה 760 מ' מעל פני הים. נקבה זאת מכוונת בערך אל מקום הקבר. השערה שלי שנקבה זאת עוברת מתחת לקברי המלכים ומתחברת ע''י מחילה אנכית אל מערת הקבורה. באופן זה היא מוציאה טומאה מן הקבר אל מחוץ לעיר. משם היא פונה צפונה ומתחברת אל בריכת חזקיה.

            קבר אהרן לפי טענתי נמצא בסביבות פסגת הר רמון גובה 1033 נ.צ. 115150/990250 (נקודת טריג 364 מ) (זאת חניה מספר 33 במפת הארץ(. אזימות ממערת המכפלה עליו 21.79 מעלות (הערה 18: כ- 110 מ' מערבה מגובה 1033 הנ''ל נמצא טומולי גדול דומה קצת למנורה. אזימות ממערת המכפלה עליו שוה בדיוק 21.84 מעלות). מכאן קבר אהרן, מערת המכפלה, קבר רחל וקבר דוד נמצאים על קו ישר אחד!

 

3.3. מקברי דוד עד עד פתח בית אלישיב

 

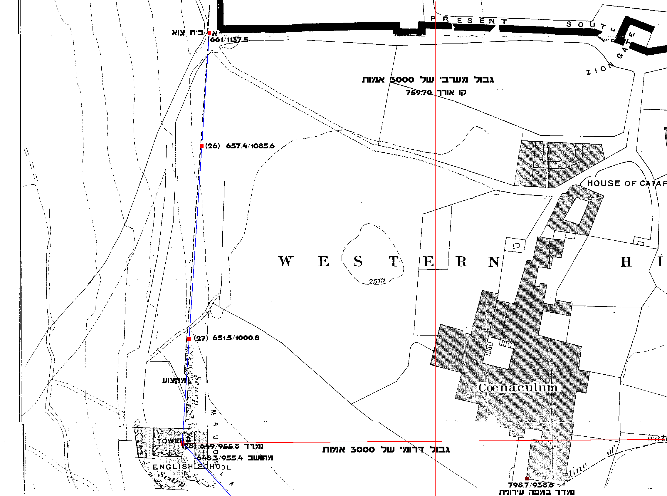
נתאים את המשך החומה לשרידים שנמצאו בשטח כפי שמקובל לפרשם היום.  דהיינו, החומה עוברת בתחילה לאורך חומה מערבית של העיר של היום עד קצה דרומי בנ.צ. 171661/131137.5 (נקודה (א)) ( כ- 4 מ' מערבית מחומה הטורקית. כך נראה ממפה Bliss and Dickie, General Plan 1, ראה מפה 1). (הערה 19: כאן מסתיימת חצר התיכונה שמאחרי בית המלך (ראה מ''ב כ' ד' וגמרא עירובין כ''ו ע''א) בשטח 40 בית סאה. חצר זאת חסומה ממזרח ע''י גבול מערבי של העיר של 3000 אמה, ממערב ע''י חומת העיר, מצפון ע''י בית המלך קו רוחב של נקודה (22) ובדרום ע''י קו רוחב של נקודה (א). שטח של תחום זה 39.09 בית סאה. ולפי ר' אלעאי בעירובין (שם)  השטח של החצר היה 30 בית סאה. אכן השתמר שם סימן בדמות תל בגובה כ- 3 מ', קו רוחב 1204 (ראה גיליון דרומי). אם נחשב שטח התחום כמו לעיל אבל עד קו רוחב 1204, נקבל 29.32 בית סאה. במלחמות ה' ד' ב' מוזכר מקום "בית צוא", בערך באזור זה של חומת העיר. המילה כתובה יוונית ברצף. ונתן לקרוא אותה "בית סאה". ושם זה מרמז על שטח חצר התיכונה 40 או 30 בתי סאה. ומה פלא שבחפירות בגן הארמני לא מצאו שם שרידי ישוב? כי מקום זה שמש חצר אחורית של בית המלך!)

            מנקודה (22) נקציב קטעים באורך 85 מ' בקו ישר לנקודה (א).  נזכיר שבית הגיבורים נ.צ. 171679.49/131424.83. "אחריו החזיקו הלוים רחום בן בני" (נחמיה ג' י''ז) עד נקודה (23) נ.צ. 674.03/340.01. "על ידו החזיק חשביה שר חצי פלך קעילה לפלכו" (שם) עד נקודה (24) נ.צ. 668.58/255.19. "אחריו החזיקו אחיהם בוי בן חנדד שר חצי פלך קעילה" (שם, י''ח)  עד נקודה (25) נ.צ. 663.12/170.36. "ויחזק על ידו עזר בן ישוע שר המצפה מדה שנית מנגד עלת הנשק המקצע" (שם, י''ט). מנקודה (25) עד (א) מרחק 32.93 מ'. משם יש למדוד עוד 52.07 מ' לנקודה (26) ושוב 85 מ' לנקודה (27) שהיא "מנגד עלת נשק המקצע". והנה מנקודה (א) החומה פונה לפינה דרום-מערבית, אותה מצא Maudslays בחצר בית ספר אנגלי. יש שם מגדל גדול. על כן נזהה פינה זאת עם המקצוע. אבל המרחק מנקודה (א) עד הפינה הוא כ- 182 מ'. לכן נקודה (27) מרוחקת כ- 45 מ' מן המקצוע. לגבי קטע הבא כתוב "אחריו החרה החזיק ברוך בן זבי מדה שנית מן המקצוע עד פתח בית אלישיב הכהן הגדול" (שם, כ'). יש הבדל בין עלות נשק המקצוע לבין מקצוע בו מתחיל מדה שנית (של 170 מ') של ברוך בן זבי.  לכן נראה לנו לפרש שעלות נשק המקצוע זהו תחילת העליה אשר עלתה למקצוע. ועזר בן ישוע בנה עד מקום זה. ואילו ברוך בן זבי בנה ממקצוע גופא. ולא חכה לראות האם עזר בן ישוע יתחבר אליו, אלא "החרה החזיק"-מיהר להתחיל את עבודתו מפינה דרום-מערבית של החומה. ונשאר רווח בינו לבין קודמו. ויתכן שמקום זה היה מבוצר היטב כי היה שם מגדל פינתי. על כן הוא השתמר ולא היה צורך לבנותו. נזהה את המקצוע עם פינה צפון מערבית של חצר בית ספר. נקודה זאת נמצאת בהמשך קו של החומה, על גבול מזרחי של המגדל בערך באמצע אורכו בכיון דרום-צפון. נסמן נקודה זאת ב- (ב). בגבולות דיוק המדידה (פחות ממטר) נתן להגדיר נקודה זאת בתור נ.צ. 171648.3/130955.4 (ראה מפה 1 והסבר בהמשך). מכאן נתן לחשב נקודות (26) ו- (27) על הקו (א)-(ב): (26) 657.38/1085.56, (27) 651.46/1000.76. את נקודה (ב) נמספר בתור (28) 171648.3/130955.4. אורך "עלת נשק המקצוע", הוא מרחק בין נקודות 27 ו- 28, שווה 45.4 מ'.

       לפי נחמיה, ברוך בן זבי בנה 170 מ' ממקצוע עד פתח בית אלישיב. אכן במפת בליס ודיקי, במרחק כ- 170 מ' מן המקצוע מסומן שער. מרכז שער זה (צד חיצוני) בגבולות דיוק המדידה נתן להגדיר בתור נקודה (30) נ.צ. 171759.7/130827.0 (ראה מפה 2 והסבר בהמשך). המרחק בין (28 ) ל- (30) אכן שוה 170 מ'.  נקודה (29) מוגדרת בתור נקודה אמצעית  בין (28) ו- (30): נקודה (29) נ.צ. 704/891.2. נציין שקו רוחב של (28) זהה לקו רוחב גבול דרומי של ריבוע של 3000 אמה וקו אורך של נקודה (30) שוה לקו אורך גבול מערבי של הריבוע (ראה חישוב בהערה 10). אין ספק שדבר זה היה מתוכנן ע''י בוני חומה המקורית, דוד ושלמה. מקצוע כנגד גבול דרומי של 3000 אמה ושער פינתי עיקרי כנגד גבול מערבי. ואין לתמוה איך נבואת יחזקאל לגבי בית המקדש וגבולות ירושלים (ואף גבולות הארץ) היתה ידועה לדוד ושלמה (ראה כגון זה יומא ע''א ע''ב). לפי מפת בליס, החומה בקטע 28-30 איננה חד-משמעית. יש שם חריץ פנימי וחריץ חיצוני. קו 28-30 עובר סמוך לחזית של חריץ פנימי ודרך חזית של של מגדל ABC.

            נחזור אל שער (30). שער זה גם נחקר לאחרונה ע''י ארכיאולוגים ישראלים (ראה מאמר של  חן, מרגלית ופיקסנר ב- Ancient Jerusalem Revealed,1994 עמ' 76) אשר מצאו בו שרידים מתקופת הברזל (בית ראשון). לפי סברה, זהו שער האסיים אשר מוזכר במלחמות ה' ד' ב'. ולפי חשבוננו שער זה הוליך אל ביתו של כהן גדול. כדי לברר מקומו של בית זה נמשיך עם קטע הבא "אחריו החזיק מרמות בן אוריה בן הקוץ מדה שנית מפתח בית אלישיב ועד תכלית בית אלישיב" (שם, כ''א). נמדוד 170 מ' לאורך החומה. כעבור 58 מ' ממרכז השער, אנו פוגשים את אמת המים התחתונה מבית לחם, אשר נכנסת לירושלים מדרום. קטע של 170 מ' מסתיים סמוך לתחילת מגדל 5. אם נלך מנקודה זאת בדיוק צפונה, נפגע כעבור כ- 51 מ'  (או 100 אמה) בפינה דרום-מערבית של מגדל גדול. אל מגדל זה גם מגיעה אמת המים הנ''ל וממנו דרומה יוצאת תעלת ניקוז. על כן נזהה מגדל זה עם בית של כהן גדול. אמת המים הביאה מים חיים אל ביתו כך שהוא היה טובל במי מעיין. וכן לשכת כהן גדול על גבי שער המים היתה סמוכה למקוה אשר קבל מימיו ממעין עין עיטם (יומא ל''א ע''א). נציין  שלפי מסורת נוצרית, בית של כהן גדול כיפה היה באזור הר ציון, צפונית למקום המכונה "קבר דוד". מרחק משם למגדל אשר זהינו עם בית אלישיב הוא כ- 200 מ'. יתכן שכל האזור של מה שמוכנה היום "הר ציון" יועד למגורי כהן גדול וכהנים אחרים. בית המלכות בצד צפון מערבי של העיר, ובית כהונה סמוך לו בצד דרום-מערבי.

            כעת נסביר כיצד חשבנו נקודות שונות על גבי חומת העיר. לצורך זה נעזרנו במפות בספר Bliss and Dickie (1) General Plan 1,2, קנה מידה 1:1000(ראה מפות  1,2, 3,4) . מפות אלו הודפסו על נייר. העותק אשר נמצא בספריה הלאומית, הודבק אחר כך על גבי בד לצורך שימור. כתוצאה מכך מפות התעוותו במקצת. מפות אלו שורטטו במקור על גבי מפות של Ordnance Survey Plan של וילסון 1:2500 אשר הוגדלו בהתאם. מפות מקוריות של וילסון שמורות במצב מצויין בספריה הלאומית. זהינו מספר נקודות בקורת ממפה של בליס על גבי מפה של וילסון וכן זהינו אותם על גבי מפת עיר העתיקה 1:2500 של מרכז למיפוי ישראל עם רשת קורדינטות. מאחר ובמפת וילסון אין רשת קורדינטות, חישבנו קורדינטות של נקודות שונות מתוך קורדינטות של פינה דרום-מזרחית של הר הבית 593.28/492.97, גובה 717.6 (מדידה של מודדי השומרון בניסן תשס''א). התאמה בין מפת וילסון למפה ישראלית היתה בגבולות דיוק המדידה. השתמשנו בנקודות בקורת אלו סמוך לפינות דרום-מערבית ודרום-מזרחית של החומה וכן סמוך לפינה דרום-מזרחית של הר הבית. על גבי מפת בליס מדדנו הפרשי רוחב ואורך ביחס לנקודות בקורת אלו ושחזרנו קורדינטות של נקודות בהם החומה משנה כיוון. קנה מידה של מפות בליס חושב ע''י סרגל שהודפס בהם. במפה מערבית קנה מידה 1:1007.6 ובמפה מזרחית- 1:1015. ברור שבמפות של 1:2500 אין לצפות לדיוק יותר ממטר. במפה מערבית בתור נקודת בקורת לקחנו פינה דרום-מערבית של מבנה המכונה Coenaculum, אשר כולל את מה שמכונה היום "קבר דוד". לפי מפה ישראלית זהו 798.7/938.6 ולפי מפת וילסון 799.2/940.5. זהו הפרש זניח בקו אורך והפרש של פחות משני מילימטר במפה בקו רוחב. נקודה (28) נמצאת בפינה צפון-מערבית של חצר בית ספר אנגלי. חשבנו קורדינטות שלה מתוך מפת בליס על סמך נ.צ. 798.7/938.6 הנ''ל כי היא נראת לנו יותר אמינה. קבלנו נ.צ. 649/955.8. באותו אופן חישבנו נקודה (30) במרכז השער. קבלנו 759.6/827. אחרי זה החלפנו 955.8 בערך תיאורטי 955.4 ו- 759.6 ב- 759.7. כדי להתאים מרחק בין (28) לבין- (30) ל- 170 מ' החלפנו 649 ב- 648.3 ושמרנו על קו רוחב 827 שהוא יותר ודאי. הבדלים אלו זניחים לעומת דיוק המפות. על כן יש כאן מופת משולש: א)מקצוע נמצא בקו רוחב גבול דרומי של ריבוע של 3000 אמה; ב) מרכז השער נמצא בקו אורך גבול מערבי של 3000 אמה; ג) מרחק ביניהם שוה שני קטעים של 85 מ'. גם מקום המגדל על אמת מים, אשר זהינו אותו עם בית אלישיב, מתאים לתיאור קטע (30)-(32) בנחמיה.

 

3.4 מפתח בית אלישיב עד בית המלך העליון

           

נמשיך את חשבון הקטעים לאורך החומה. מנקודה (30) החומה ממשיכה בקו ישר 15.89 מ' לפינה (ג) נ.צ. 770.11/815 (ראה מפה 3). יש שם מגדל פינתי. נקודה (ג) נמצאת על קו חומה דרומית (צד חיצוני) ובהמשך קו (28)-(30). מנקודה (ג) החומה הולכת כמעט בקו ישר לנקודה (ד) 957.9/817.5 (נקודה W במפת בליס). משם בקו ישר לנקודה (ה) 172126.9/130776.2 (קצה מערבי של שריד כותל Z במפת בליס) (ראה מפה 4). בקטע (ד)-(ה) השתמרו רק שני קטעים קטנים של חומה, X ו- Y. משם וכמעט עד פינה דרום-מזרחית של העיר, החומה במפת בליס משוערת (inferred line of wall). בכל זאת שחזרנו אותה נאמנה. פינה הבאה היא נקודה (ו) 152.1/776.2 סמוכה ל- (ה).                                 

            משם אנו עוברים לגליון מזרחי של המפה (General Plan II) (ראה מפות 5,6,7,8) כאן בעזרת מפת וילסון 1:2500 זהינו במפה ישראלית ובמפת בליס את הפינה הדרומית של בריכת חמרה (בריכת שלמה). קורדינטות שלה במפה ישראלית  172357/130808.8 ובמפת וילסון 353.6/809.2 (ראה מפה 5). יש כאן כמעט שיווין בקו רוחב ואי-התאמה של 3.4 מ' בקו אורך. נראה שיש לסמוך יותר על מפת וילסון שבה זיהוי פינת הבריכה עם אותה הנקודה  במפת בליס ודאי. (הערה 20: לצערנו במפת בליס, בקו רוחב בסביבת הנקודה H2 ישנה תזוזה אנכית  בגלל הדבקה. ע''י אקסטרפולציה משני צידי קו הרוחב, התברר שהתזוזה היא 1.9 מ''מ, כלומר יש להזיז חלק דרומי של מפה 1.9 מ''מ דרומה (שהם 1.9 מ' במציאות). ואז קו רוחב גבול דרומי של הגליון לא 709.2 אלא 707.3. בעזרת קו רוחב זה חשבנו על גבי המפה את קוי רוחב של נקודות בחלק דרומי של המפה. ישנה גם תזוזה בחלק דרומי של המפה בצדה המערבי. התזוזה היא מזרחה כמילימטר.  כ- 10 ס''מ (שהם 100 מ') יותר מזרחה, התזוזה מתבטלת. דברים אלו נלקחו בחשבון. אחרי כל התיקונים התברר שקיימת אי-רציפות בין גליון מערבי לגליון מזרחי של בליס. נקודה בה חומה חוצה את גבול מזרחי של גליון מערבי היא 166.7/770.9. אם נתבסס על נ.צ. 353.6/809.2 של מפת וילסון אז הנקודה בה החומה חוצה את גבול מערבי של גליון מזרחי תהיה 168.9/776.8 כלומר, אי-רציפות בקו אורך היא 2.2 מ' בלבד (במקרה של נתון 357/808.2 ממפה ישראלית, הקפיצה בקו אורך יותר גדולה). אבל לגבי קו רוחב, ישנה אי התאמה של 5 מ''מ (שהם 5 מ') בסימון של החומה בין שני חלקי מפת בליס. רואים אותה בבירור כאשר מדביקים קוי גובה בין שני חלקי המפה. אנחנו נתעלם מטעות זאת (כלומר, לא נשנה את הנקודה ה') כי ממלא מדובר שם בקו חומה משוער. טעות זאת גם לא משנה אורך כללי של חומה הדרומית (הוספת 5 מ' לקו רוחב של נקודות ד' וה' מגדילה את אורך החומה ב- 35 ס''מ בלבד)).

            נקודת פניה הבאה בחומה המשוערת היא (ז) 190/767 . אחריה נקודה (ח) 284.7/769.9. מנקודה (ח) נעביר קו ישר לאורך גבול חיצוני של חומת בליס עד שהוא פוגע בכותל מגדל פינתי (מצד פנימי) בנקודה (ט) 337.9/743.5. קו זה עובר דרך מרכז פתח השער נ.צ. 325.7/749.4. סכום מרחקים לאורך החומה מנקודה (30) עד (ט) הוא 

    15.88+187.81+173.97+25.2+39.0+94.74+59.39=595.99.

 

נציין שסכום הכללי מושפע בעיקר ע''י קו אורך של פינה דרום-מערבית וקו אורך של פינה דרום-מזרחית של החומה. ובנתונים אלו כמעט ואין אצלנו ספק.   

            כעת נחזור לספר נחמיה ונתאר את המשך הבניה מנקודה (30) מזרחה. מרמות בן אוריה בן הקוץ בנה מכאן שני קטעים של 85 מ'. קטע ראשון מסתיים בנקודה (31) 839.23/815.92 וקטע שני "עד תכלית בית אלישיב" בנקודה (32) 924.22/817.05 (מפה 3). פינה דרום-מזרחית של מגדל אשר זהינו אותו עם בית אלישיב נמצאת בנ.צ. 924.65/871.3 (הערה 21: קטע ג'-ד' למעשה לא לגמרי ישר. בפועל נקודה (32) נמצאת בקו רוחב 819.7 או 51.6 מ' דרומית מפינת המגדל). כלומר, "תכלית בית אלישיב"  בדיוק כנגד סוף הקטע! "ואחריו החזיקו הכהנים אנשי הככר" (שם, כ''ב), 85 מ' עד לנקודה (33) 172007.75/130805.32(מפה 4). "אחריו החזיק בנימן וחשוב נגד ביתם", 85 מ' עד נקודה (34) 90.32/785.14. "אחריו החזיק עזריה בן מעשיה בן ענניה אצל ביתו"(שם, כ''ג), 85 מ' עד נקודה (35) 173.62/770.98 (מפה 5). "אחריו החזיק בנוי בן חנדד מדה שנית מבית עזריה עד המקצוע ועד הפנה" (שם, כ''ד). הוא בנה 85 מ' עד נקודה (36) 258.11/769.09. ועוד 85 עד נקודה (37) 337.01/743.94. והנה נקודה (ט) 337.9/743.5 על פני כותל מזרחי של מגדל פינתי נמצאת כמטר בלבד מזרחית מנקודה (37). בגבולות דיוק המדידה קבלנו זהות! על כן נזהה את הפינה עם מגדל בפינה דרום-מזרחית של חומת העיר. נציין שבהגדרת אורך חומה הדרומית לא היתה אצלנו יכולת "משחק". נקודה התחלתית (30) נמצאת במרכז השער אשר זהינו אותו עם פתח בית אלישיב. כל מהלך חומה משורטט ע''י בליס. עובדה שבגליון מערבי בחרנו קורדינטות של פינת Coenaculum במפה ישראלית ולא במפת וילסון, כמעט לא משנה את אורך החומה (מקטינה אותו בחצי מטר). אפשר היה לקבוע נקודה ט' לא בצד פנימי של חומת המגדל אלא בצד חיצוני. במקרה זה אורך החומה היה גדל ב-3 מ'. עדיין אורך זה קרוב לערך המצופה של 9 פעמים 85 מ' עד כדי דיוק המפות.

            אם תיאורנו נכון, הוא צריך להתאים למקראות בכל הפרטים. הסברנו מהי פינה. אבל מהו המקצוע? נקרא פסוק הבא "פלל בן אוזי מנגד המקצוע והמגדל היוצא מבית המלך העליון אשר לחצר המטרה וגו'" (שם, כ''ה). נתבונן במפת בליס ((מפה 5). המגדל הפינתי מתחבר אל חומה מזרחית של העיר סמוך לנקודה E2. קצה דרומי חיצוני של החומה נמצא בנ.צ. 339.53/751.72. חומה זאת נמשכת לאורך כ- 45 מ' עד הנקודה H2. למעשה אורך החומה מקצה הדרומי הנ''ל עד תחילת קטע של פלל בנקודה (38) נ.צ. 360.43/791.9 (ראה בהמשך) הוא 45.3 מ', בדיוק כאורך "עלת נשק המקצוע" מנקודה (27) עד (28). על כן אנו נזהה אורך חומה זאת עם המקצוע. אולי בדומה "לעלת נשק המקצוע", קטע זה השתמר ולא נבנה מחדש. לכן פלל בן אוזי התחיל בנייתו מקצה צפוני של המקצוע (הערה 22: בליס טוען שמגדל הפינתי נבנה יותר מאוחר. יתכן שבזמן נחמיה פינה היתה בקצה דרומי של המקצוע. ואז יש להעתיק נקודה (ט) היא (37) לשם. נציין שתזוזה זאת לא משנה את אורך החומה כי מרחק ממרכז שער המטרה עד נקודה (ט) זהה למרחק ממנו עד קצה דרומי של המקצוע). בנקודה H2  אל החומה המזרחית מתחברת חומה מערבית אשר נמשכת צפונה לאורך עמק טירופיאון. החומה המזרחית נמשכת צפונה מנקודה H2 עד נקודה M2. בקטע זה של החומה ישנם 7 בליטות. המרווחים בין הבליטות נסתמו בזמן מאוחר יותר. מנקודה M2 החומה פונה מערבה כ- 10 מ' אל נקודה E3. שם היא מתחברת לפינה דרום-מערבית של מגדל. מגדל זה אורכו מדרום לצפון כ- 37 מ' ורוחבו ממזרח למערב כ- 20 מ'. (הערה 23: בליס טוען שמגדל הגדול הוא מאוחר ומגדל הקדום בגודל 8 על 15 מ' היה בפינה דרום-מערבית של מגדל הגדול). לפי דעתנו זהו המגדל היוצא מבית המלך. אם נעביר קו דרך כותל דרומי של המגדל צפון-מערבה, הרי המשכו יפגע בפינה דרום-מערבית של כנסיה הבנויה מעל בריכת שילוח. השערה שלנו שכאן עמד בית המלך. אורך בנין הכנסיה ממזרח למערב כ- 30 מ' ורוחבו מדרום לצפון כ- 15 מ', קרוב למידות 30 על 50 אמה של בית המלך. הבריכה והנקבה אשר הביאה את מי המעיין אליה נעשו בודאי בשביל בית המלך. חצר המטרה לפי דעתנו זהו שטח המוגבל במזרח וצפון ע''י חומה H2M2E3 וממערב ודרום ע''י חומת בריכת שלמה E3P2H2. שטח זה (אם מעבירים גבולותיו באמצע עובי הכתלים) קרוב לבית סאתים, דהיינו 5000 אמות של 48 על 48 ס''מ. חצר זאת הגנה על בית המלך ממזרח. במידת הצורך אפשר היה להציפה במים מבריכת שלמה. בקצה דרומי שלה במפת בליס מסומנת Cistern, בית קיבול מים. אולי כאן היה בור טיט אליו השליכו את ירמיהו (ירמיה ל''ח ו')?

            אנחנו מזהים את השער בפינה דרום-מזרחית של העיר עם שער המטרה (ראה נחמיה י''ב ל''ט). שער זה נמצא דרומית לחצר המטרה והוא מהוה מוצא של רחוב ראשי אשר יורד מפינה דרום-מערבית של הר הבית לאורך עמק טירופיאון.

             כעת נגדיר באופן מדויק את הקטע של פלל בן אוזי. תחילתו בפינה דרום-מזרחית של חצר המטרה, מצד חיצוני (דרומי) של קיר דרומי של החצר. זוהי נקודה (38)  360.43/791.9 אשר ציינו לעיל. סופו בפינה דרום-מערבית של מגדל היוצא. יש שם בליטה קטנה בכותל מסומנת אצל בליס ע''י אות  t (ראה מפה כללית  ומפה מוגדלת). בליס כותב עליה בעמ' 109 “At t the stones of the wall n-p are cut diagonally to let in a small buttress the purpose of which is mysterious”. צפונית לבליטה זאת יוצאת מן הכותל אמת מים. נסמן קצה דרומי של בליטה t ע''י אות י' נ.צ. 390.58/871.60. המרחק ממנה לנקודה (38)85.21 מ'. בגבולות דיוק המדידה זהו 85 מ'! על כן בליטה t מהוה גבול צפוני של קטע של פלל בן אוזי. אולי בכוונה השאירו שם סימן. כדי לשמור על דיוק מתמטי אנו נמדוד 85 מ' בדיוק מנקודה (38) אל י'. קבלנו נקודה (39) נ.צ. 390.52/871.39. כעת מתבררים הפסוקים כ''ד וכ''ה בנחמיה ג'. בנוי בן חנדד החזיק "עד מקצוע" דהיינו כנגד המשך דמיוני של קו חומה מזרחית בקטע E2H2, ומעבר לו "עד הפינה", דהיינו עד מגדל פינתי. ופלל בן אוזי "מנגד המקצוע", דהיינו מנגד קצה צפוני של המקצוע ועד מגדל היצא. אותו מגדל יוצא מבית המלך העליון כפי שציינו הוא סמוך לחצר המטרה. וגם בית המלך סמוך לחצר המטרה, היא חצר המטרה אשר הוזכרה אצל ירמיה. קיר מסיבי H2M2 עם 7 בליטות  של מגדלים שמר על חצר המטרה אשר שמרה על בריכה ועל בית המלך.

             אבל קשה, מדוע בית מלך זה נקרא עליון? הרי לפי תיאורנו, בית מלך עיקרי היה ליד מגדל דוד  במקום הרבה יותר גבוה! יתכן שמקרא השתמש כאן בלשון סגי נהור (כי למעשה בית המלך זה היה קשור לעבירה של שלמה אשר הרבה לו אלף נשים. על כך בהמשך). ועוד יתכן שמילה עליון מחוברת אל חצר המטרה, שבית זה היה מעל לחצר המטרה.

 

3.5 מבית המלך העליון עד הר הבית

           

            קטע הבא אחרי פלל בן אוזי החזיק פדיה בן פרעש (שם, כ''ה). נמדוד מנקודה (39) 85 מ' לאורך החומה (בעצם לא נמצאו שם שרידים של חומה אלא של חתך בסלע). על גבי מפת בליס מדדנו שתי נקודות בה החומה משנה כיוון, נקודה י''א 412.5/933.5, ונקודה י''ב 402.35/986.3 (ראה מפה 6) (נזכיר שהנקודות נמדדו ביחס לפינה דרומית של בריכת חמרא במפת וילסון נ.צ. 353.6/809.2). קצה קטע של פדיה נמצא בנקודה (40)  408.89/952.27, בין  י''א לי''ב.

             נביא שני פסוקים הבאים "והנתינים היו ישבים בעפל עד נגד שער המים למזרח והמגדל היוצא. אחריו החזיקו התקעים מדה שנית מנגד המגדל הגדול היוצא ועד חומת העפל". נראה שנתינים לא בנו כלום והכתוב הזכיר אותם משום שמקום ישיבתם התחיל בנקודה (40) היא תחילת מידה שנית- 170 מ' אשר החזיקו התקעים. היכן נמצא שער מים? אם "נגד" פרושו- בסמוך, אז שער המים ומגדל הגדול היוצא נמצאים בנקודה (40). אבל בחפירות של בליס לא נמצאו שם שרידים של שער או מגדל. מאידך, סמוך לכנסיה הביזנטית, בצפון-מערבה, בליס מצא מבנה גדול (ראה עמ' 149 בספרו) אשר חוסם את המעבר מרחוב (אשר בא מצפון) אל מדרגות אשר מוליכות לבריכת שילוח. בליס משער שבמקום זה עמד שער אשר דרכו עברה דרך צדדית אל הבריכה. בעמ' 197 בליס מביא דברי   Antoninus (שנות 560-570 לספירתם)

“Thence we came to an arch where there was an ancient gate of the town. In that place was dirty water into which the prophet Jeremiah was thrown. Descending from the arch by many steps to the fountain of Siloam, which has two baths, made by the hands of man out of marble; between bath and bath runs a partition; in one men, in the other women, bathe for blessing etc.”

אין ספק שהוא מתכוון לשער אשר היה סמוך למדרגות אשר יורדות לבריכה ומים מלוכלכים היו כנראה בתעלת ניקוז אשר עוברת שם בסמוך. בעמ' 191 בליס מביא דברי Theodosius  (שנת 530 למנינם)

“The Pool of Siloam is 100 paces from the place where the Prophet Jeremiah was cast into pit; the pool is within the wall.

אנטונינוס בודאי נסמך על אותה מסורת שהיתה לתאודוסיוס 30 שנה לפניו. על כן, שער קדום היה במרחק 100 צעדים מבריכת שילוח. אכן המרחק ממקום החסימה עד הבריכה כ- 50 מ' או 100 אמה. וכלל לא יתכן שאנטונינוס דבר על שער העיר ליד הר הבית כפי שרצה לפרש בליס. אומנם לגבי זיהוי מקום בו השליכו את ירמיהו ישנו שבוש, ברם המקומות הם סמוכים. לפי דעתנו שער זה הוא שער המים, כי הוא הוליך אל בריכת שילוח. ופרט לשער, היה שם מגדל אשר הגן על בית המלך מצפון. וזהו מגדל היוצא או מגדל הגדול היוצא המוזכר בפסוקים כ''ו-כ''ז. ובנין החוסם כנראה נבנה יותר מאוחר על גבי שרידי אותו שער. במפה של בליס רואים שנקודה (40) נמצאת באותו קו רוחב כמו צד צפוני של בנין החוסם. מכאן משמעות של "נגד" בפסוקים כ''ו-כ''ז זהו כנגד למערב ולא בסמוך. מדוע שער המים נקרא "למזרח"? כי היה בצד מזרחי של העיר להבדיל משער המים אשר היה בגבול דרומי של עזרה.

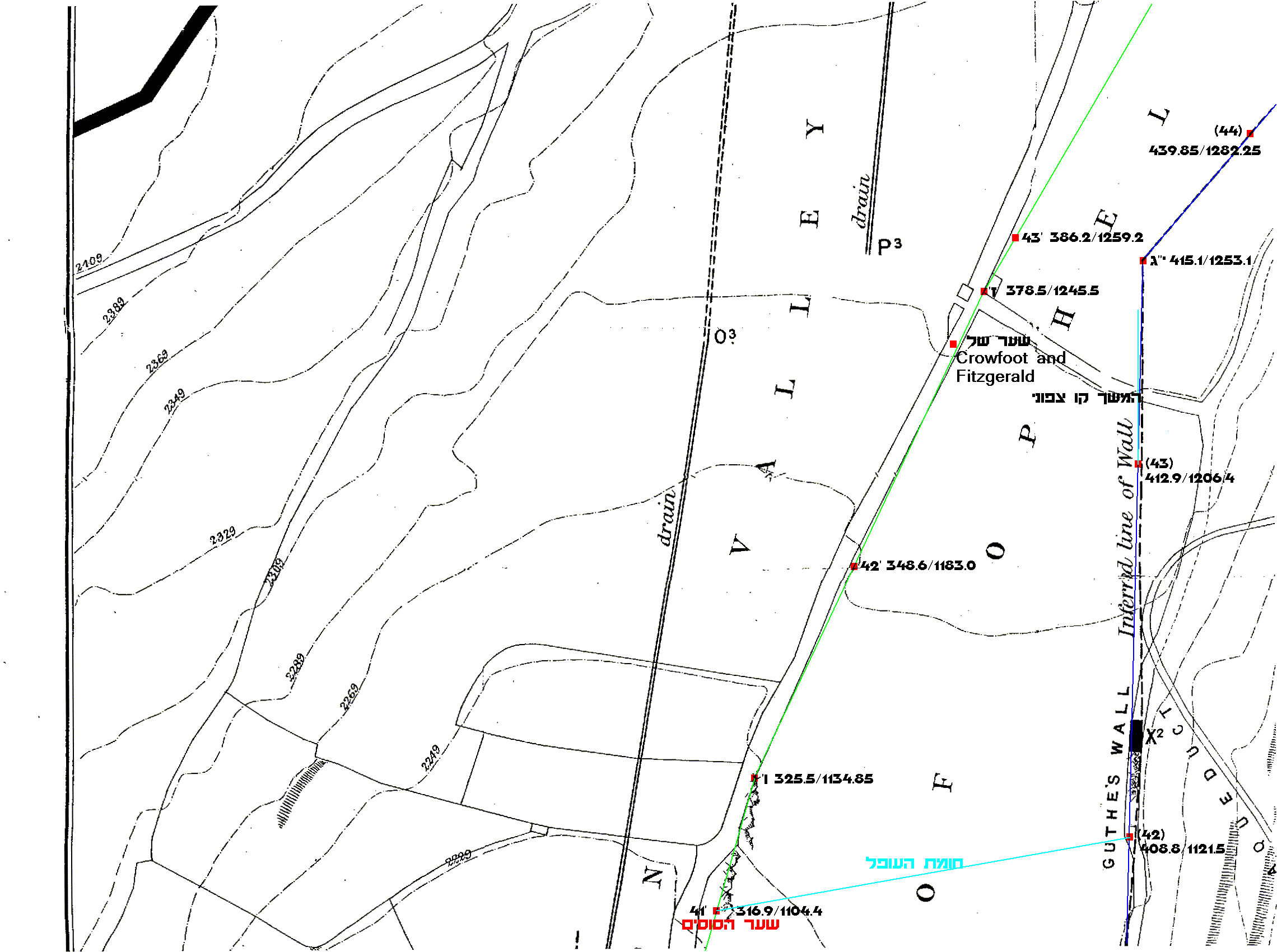
            נמדוד מנקודה (40) קטע אחד של 85 מ' לאורך חומת בליס. מנקודה י''ב לעיל החומה המשוערת של בליס (היא מבוססת חלקית על שרידים שמצא Guthe (2)) הולכת בקו ישר לנקודה י''ג 415.1/253.1 (יש להוסיף עליה 172/131 אלפים). על כן מקבלים נקודה (41)  נ.צ. 404.75/036.58. אחריה עוד 85 מ' בקו ישר אל י''ג, מקבלים (42) 408.81/121.49 (אנו עוברים למפה 7). לפי פסוק כ''ז היתה כאן חומת העופל! סימנו נקודה (42) גם במפה מס' 4 בספר של Guthe. היא נמצאת  כמטר אחד דרומית לקו (כחול) OT. בגבולות דיוק המדידה נקודה זאת נמצאת על הקו. מתוך תיאורו של Guthe (עמ' 151) מתברר שחומה עוברת מצפון לדרום בקו EDMNO  ובנקודה O היא נפסקת וממשיכה דרומה לאורך קו TU כ- 5-6 מ' מערבה יותר. בצד מערבי של חפיר T בולטת מערבה אבן בניה גדולה. Guthe לא המשיך לחפור מערבה מנקודה T. יתכן שאבן בניה זאת היא תחילת חומת העופל אשר נמשכת מנקודה T מערבה.

            מה מיוחד במקום זה שהוא נקרא עופל (או תחילת עופל)? אנו נדון בכך בהמשך. כעת נביא תיאור חומה דרומית ומזרחית של ירושלים ע''י יוספוס ב"מלחמות" ה' ד' ב'. "ומשם (שער אסיים) נסבה (החומה) לרוח דרום ועברה על מעין השלח ומשם סבבה עוד הפעם ונטתה לרוח מזרח אל בריכת שלמה עד הגיעה  אל המקום הנקרא עפל ופגעה באולם המזרח אשר להר הבית". משמע שמעין שילוח נמצא בפינה דרום-מזרחית של העיר ובריכת שלמה נמצאת ברוח מזרח ממש, צפונית למעין. מקובל לזהות בריכת שלמה עם בריכת חמרה, מערבית לקטע 38-39. אם מעין שילוח זהו מקום יציאתו מהנקבה היום, אז המעין נמצא צפונית לבריכה ולא להפך! ויש לתרץ שמי מעיין יצאו מהברכה וזרמו דרומה דרך שער מטרה ליד נקודה (37), בסמוך או בתוך תעלת ניקוז אותה מצא בליס. מים אלו שמשו להשקיית גינות אשר היו בנחל קדרון. ויוספוס התייחס לנקודת יציאת מי המעיין מן העיר. על כל פנים למדנו מדבריו שעופל נמצא צפונה מן הבריכה. בפרק ששי יוספוס מתאר את חלוקת העיר בין שמעון ליוחנן. שמעון קבל בפרט "חלק החומה הישנה אשר נטה לצד מזרח וירד אל חצר מונבז וכו'. ובידו גם היה המעין (השלוח) וחלק חקרא היא העיר התחתונה עם ארמון הילני אם מונבז. ויוחנן תפש את הר הבית וחלק גדול מן הככר אשר מסביב ואת העפל ואת נחל הנקרא קדרון. ואת המקום אשר ביניהם בתוך שלחו באש למען יהיה להם לשדה מלחמת אחים".  מדברים אלו ברור שעופל נמשך מפינה דרום-מזרחית של הר הבית או סמוך לה ודרומה. והיה רווח בינו לבין מעין שלוח אותו שלחו באש. (הערה 24: משמע שחצר מונבז היתה סמוך לפינה דרום-מזרחית של העיר. ויתכן שארמון שלו היה במקום בית המלך העליון, סמוך למעין שלוח תחתון. ואילו ארמון אמו היה סמוך לפינה צפון-מערבית של העיר ליד מעין שלוח עליון). מתוך חשבון שלנו מתברר שגבול דרומי של עופל היה בנקודה (42). כפי שנראה בהמשך, מכאן ועד פינה דרום-מזרחית של הר הבית ישנם 5 קטעים. וכן מפינה דרום מזרחית (נקודה (37)) עד (42) 5 קטעים (מיהו קטע (37)-(38) יותר קצר). נמצא שנקודה (42) מחלקת את רוח מזרחית לשני חלקים בערך שווים.

            היכן ישבו נתינים? אם עופל נמצא צפונה מנקודה (42), כיצד הגיעו לנקודה (40) נגד שער המים? אולי מקום ישיבתם היה ברובו צפונה מ-(42), בעופל, והוא נמשך דרומה כנגד שער המים? כידוע נתינים היו חוטבי עצים ושואבי מים. טבעי הדבר שהם ישבו סמוך למוצא מקורי של מעין שילוח. ואחרי חציבת הנקבה, נמשכו דרומה עד נגד שער המים. ברור שהם ישבו מזרחית לחומת העיר ולא מערבית לה בתוך העיר, שהרי צפונית ל- (42) בתוך העיר ישבו כהנים (ראה פסוק כ''ח להלן). בחפירות של רייך ושוקרון לאחרונה, נתגלתה חומה תחתונה אשר הקיפה את מעיין שילוח המקורי. על כן, נתינים ישבו במדרון המזרחי של עופל וחומה התחתונה הגנה עליהם. עד היכן צפונה הגיע מקום מושבם? אם "מגדל היוצא" אשר מוזכר אצל נתינים הוא "מגדל הגדול היוצא" סמוך לשער המים, אז פסוק כ''ו לא מגדיר את הגבול הצפוני שלהם. והפסוק ללא צורך כופל בתיאור גבול דרומי שלהם. על כן נראה לי שמגדל היוצא איננו מגדל הגדול היוצא אלא מגדל אחר בגבול צפוני של נתינים. וכמו שבפסוק כ''ה "מנגד המקצוע" ו"המגדל היוצא" מתייחסים בהתאם לגבול דרומי ולגבול צפוני של קטע של פלל בן אוזי, כך בפסוק כ''ו "נגד שער המים" ו"המגדל היוצא" מתייחסים לגבול דרומי וצפוני של נתינים. היכן נמצא מגדל זה? נראה לנו לזהות אותו עם מגדל הצפוני אשר מצא וורן (ראה מפה 8). (הערה 25: מנקודה (40) עד קצה צפוני של המגדל המרחק  470 מ'. זהו בדיוק מרחק משער אשפות על גבול בריכת חזקיה עד כותל מערבי חיצוני של הר הבית (המרחק בין שער הישנה עד שער האשפות הוא 1000 אמות של 51 ס''מ. יש להחסיר מכאן 40 מ' בין גבול מערבי פנימי של הר הבית וכותל מערבי חיצוני). מה קשר בין שני הקטעים? בקטע הצפוני ישבו נתינים  אשר שרתו את המשכן בנוב, מבריכת חזקיה ועד גבול מזרחי של יבוס. ובגבול דרומי מזרחי ישבו נתינים אשר שרתו את בית המקדש).

            נמשיך את תיאור החומה. "מעל שער הסוסים החזיקו הכהנים איש לנגד ביתו" (פסוק כ''ז). נראה ששער סוסים בדומה לשער המים לא היה בחומה מזרחית אלא בחומה מערבית של הגבעה. שאילו שער זה היה בנקודה (42), היה צריך לומר "משער הסוסים" ולא "מעל שער". ומדוע לא אמר "מנגד" כמו בפסוק כ''ו? כי שער סוסים היה יותר דרומה ונמוך מנקודה (42). (אנו נדון בשאלת מקומו מדויק של שער סוסים בהמשך). נמדוד מנקודה (42) 85 מ' בקו ישר לנקודה י''ג. נקבל נקודה (43) 412.87/206.39. סימנו אותה במפה מס' 4  בספר של Guthe. היא נמצאת ליד נקודה o בגבול דרומי של חפירה מלבנית ilkm. Guthe מצא בחפירה זאת שני קירות iq ו-ur אשר מחוברים ע''י מלוי אדמה qr (ראה שירטוט). מתיאורו של Guthe בעמ' 164 משמע שהקיר המערבי iq נמשך דרומה וצפונה מעבר לגבולות החפירה ואילו קיר מזרחי ur עוביו כ- 1.6 מ' מדרום לצפון. קיר מערבי בנוי מאבנים גדולות מותאמות יפה ללא חיבור טיט וקיר מזרחי מאבנים קטנות יותר. מתוך צירוף קטעים אחרים של החומה בחפירות של Guthe ברור שקיר מערבי הוא חלק של חומת העיר ואילו קיר מזרחי הוא תוספת חיצונית צרה. לתוספת זאת לכאורה אין שום הגיון. יתכן שעשו אותו בתור סימן לקצה צפוני של קטע (42)-(43) שנגדו ישבו כהנים. ואילו פינה OT סימנה את קצה הדרומי של תחום הכהנים. מפליא הדבר ששני סימנים אלו מתאמים באופן מדויק לחשבון הנקודות (42) ו- (43).

            "אחריו החזיק צדוק בן אמר נגד ביתו" (שם, כ''ט). נמדוד 46.76 מ' עד נקודה (י''ג). כאן חומת העופל משנה כיון והולכת בקו ישר אל נקודה (י''ד) 591.21/460.5  (ראה מפה 8(. משם חומה פונה צפונה אל פינה דרום-מזרחית של הר הבית. מאחר ובהר הבית תארנו את מסלול החומה מצד פנימי של החומה, בחרנו נקודה י''ד בצד מערבי של עובי החומה המזרחית. וכן נבחר נקודה הבאה (ט''ו) 588.76/492.17 4.59 מ' מערבה מפינה דרום-מזרחית של הר הבית, כלומר מצד פנימי של עובי החומה המזרחית. משם אנו מעבירים קו ישר אל פינה דרום-מזרחית של הר הבית המקודש (נקודה (12) לעיל) ומשם למרכז שער שושן (נקודה (1)). נחזור לחישוב נקודות החומה. כדי להגיע לנקודה (44) נמדוד יתרה של 38.24 מ' מ(י''ג) אל (י''ד). נקבל נקודה (44) 439.85/282.25. "ואחריו החזיק שמעיה בן שכניה שמר שער המזרח" (שם). נמדוד 85 מ' אל (י''ד) ונקבל נקודה (45) 495.87/347.04. "אחרי החזיק חנניה בן שלמיה וחנון בן צלף הששי מדה שני" (שם, ל'). נמדוד 85 מ' אל (י''ד) עד נקודה (46) 549.89/411.83.  משם נשארו 63.84 מ' עד (י''ד) ויתרה של 21.16 מ' אל נקודה (ט''ו). קבלנו סוף מדה שני של חנניה נקודה (47) 589.58/481.59. "אחריו החזיק משלם בן ברכיה נגד נשכתו" (שם). נשארו שם 10.61 מ' עד נקודה ט''ו ומשם יתרה של 74.39 מ' אל פינה דרום-מזרחית (פנימית) של הר הבית המקודש (12). קבלנו נקודה (48) 580.00/566.04 (ראה גליון צפוני (253KB)). "אחרי החזיק מלכיה בן הצרפי עד בית הנתינים והרכלים נגד שער המפקד ועד עלית הפנה". נשארו שם 12.35 מ' עד פינה הנ''ל. לפי הכלל שנקטנו, אורך קטעים אשר בנו בתוך הר הבית נמדד באמות של 48 ס''מ, כלומר הקטעים היו באורך 80. נשארו שם 67.65 מ' עד נקודה (49) 571.47/645.59. "ובין עלית הפנה לשער הצאן החזיקו הצרפים ורכלים". נזכיר שנ.צ. של שער הצאן הוא 563.26/724.42 (נקודה (50) והיא נקודה (1)). מעלית הפינה עד שער הצאן מרחק  79.26 מ'. 76 ס''מ פחות מ-80 מ' הנדרשים. אי התאמה זאת מעבר לדיוק המדידה! נשים לב שלא היתה אצלנו אפשרות "משחק" באורך חומה מזרחית מנקודה (38) עד (50). מיקום של נקודה התחלתית (38) בקצה צפוני של המקצוע לא נתן לשנות. מקום זה מקבל אישור נוסף ע''י נקודה (39) בדיוק 85 מ' מ-(38) בתחילת המגדל ובמקום בליטה t (ראה מפה כללית של המקום). מסלול החומה נלקח כולו מבליס. למעשה, אורך שלה לא תלוי בסטיות קטנות מקו ישר אלא בקו רוחב של נקודה (38) של גביו אי ודאות קטנה מאד. על כן, עובדה שהמסלול נסגר בשער הצאן מהוה אישור נוסף לנכונות שיטתנו.

            לאור הפתרון החשבוני ננסה לפרש את הפסוקים האחרונים בנחמיה. קטע (47)-(48) של משלם בן ברכיה נופל ברובו כנגד "אורוות שלמה". על כן יש להעמיד "נשכתו"-לשכתו בשטח "אורוות שלמה". מה שמשה לשכה זאת? כתוב בנחמיה י''ב מ''ד "ויפקדו ביום ההוא אנשים על הנשכות לאוצרות לתרומות לראשית ולמעשרות לכנוס בהם לשדי הערים מנאות התורה לכהנים וללוים כי שימחת יהודה על הכהנים ועל הלוים העמדים'".  ושם י''ג ד'-ה' "ולפני מזה אלישיב הכהן נתון בלשכת בית אלקינו קרוב לטוביה. ויעש לו לשכה גדולה ושם היו לפנים נתנים את המנחה הלבונה והכלים ומעשר הדגן התרוש והיצהר מצות הלוים והמשררים והשוערים ותרומת הכהנים". משמע שזאת אותה הלשכה. ושם ו' י''ח "כי רבים ביהודה בעלי שבועה לו (לטוביה) כי חתן הוא לשכניה בן ארח ויהוחנן בנו לקח את בת משלם בן ברכיה". על כן נראה שהלשכה של משלם בן ברכיה היא לשכת בית האוצר והוא היה גזבר. והוא בנה פינה צפון-מערבית של הר הבית (נחמיה ג' ד') בקטע (5)-(6) ופינה דרום-מזרחית. בפינה צפון-מערבית בבירה היו שומרים בגדי כהן גדול (קדמוניות ט''ו י''א ד') ובפינה דרום-מזרחית היו שומרים תרומות ומעשרות, מנחה ולבונה. ולמרות שהיתה מחוץ להר הבית המקודש נקראת לשכת בית אלקינו או "נשכה בחצרי בית אלקינו" (נחמיה י''ג ז') כי היתה צמודה להר הבית ושמשה לדברים מקודשים. אלישיב הכהן כנראה בהסכמת משלם בן ברכיה נתן בלשכה זאת מקום לטוביה. יוצא מכאן שמה שמכונה היום ארוות שלמה היה בעבר מקום אוצרות מתנות כהונה ולויה. זה פשוט שלא היה בכוחו של משלם בן ברכיה לבנות מחדש פינה דרום-מזרחית של הר הבית המקודש ובנין פנימי של ארוות שלמה. אלא הוא שיקם חומה ומבנה שהיו קיימים מקודם, בזמן בית ראשון. לכן בהכרח כל הפינה הדרום-מזרחית של הר הבית היתה קיימת בסוף בית ראשון.

            מהו שער המפקד המוזכר בפסוק ל''א? שער יחידי כנגד הקטע (48)-(49) הוא שער משולש פנימי, בגבול דרומי של הר הבית המקודש. והוא נקרא "מפקד" כי דרכו בני ישראל היו פוקדים את הר הבית, לעומת שער הכפול שדרכו היו יוצאים מהר הבית. ומדוע כתוב "נגד שער" ולא "עד שער"? כי שער זה היה מרוחק מקטע (48)-(49) אבל בית הנתינים והרכלים היה סמוך לקטע (48)-(49) כנגד השער, דהיינו בפינה (12) של הר הבית המקודש. מאחר וכתוב "אחרי החזיק ... עד בית וכו'", אז בית זה לא מתחיל מיד בנקודה (48) אלא מופלג קצת ממנו. מאידך, הוא נמצא כנגד שער המפקד ולא מעבר לנקודה (12). על כן נעמיד בית זה בעובי החומה הדרומית של הר הבית המקודש. השערה שלנו שבית זה מילא את עובי החומה הרחבה מפינה (12) עד שער המפקד. והיו בו חניות לממכר בשמים, להתבשם לפני כניסה להר הבית. ממכר בשמים זוהי מלאכת רוכל, לכן בית זה נקרא בית רוכלים. ומהו בית נתינים? אולי אלה לשכות שבהן היו נותנים שקלים ופורטים כסף?

            לפי חשבוננו נקודה (48) נמצאת באמצע שער הפינה. מדוע הוא נקרא עלית הפינה? אולי היה שם כבש מבחוץ שבו היו עולים לשער? עתה נבין מדוע קטע (11)-(12) נקרא "חומה רחבה". כתוב במ''ב י''ד י''ג  אודות יהואש מלך ישראל "ויבאו ירושלם ויפרץ בחומת ירושלם בשער אפרים עד שער הפנה ארבע מאות אמה". שער אפרים מוזכר בנחמיה י''ב ל''ט "ומעל לשער אפרים ועל שער הישנה ועל שער הדגים ומגדל חננאל ומגדל המאה ועד שער הצאן ועמדו בשער המטרה". כל התיאור משער הישנה עד שער הצאן הוא לאורך חומות הר הבית בכיוון השעון.  שער אפרים אשר קדם לשער הישנה (אשר זהינו אותו עם שער קיפונוס) הוא בהכרח או שער כפול פנימי או שער משולש פנימי. המרחק משער משולש (נקודה (11)) עד שער הפינה לאורך גבולות הר הבית המקודש הוא בדיוק 160 מ'. המרחק במשער כפול (נקודה (10)) עד שער הפינה הוא 240 מ'. ארבע מאות אמות של 51 ס''מ זהו 204 מ' ושל 48 ס''מ -192 מ'. לא מתאים! השערה שלי שהמרחק נמדד באמות של 5 טפחים כאשר אמה של 6 טפחים היא אמה של 48 ס''מ. על כן 400 אמות זהו בדיוק 160 מ'! ומדוע לא נקט אמה של 6 טפחים? כי אז היה מקבל מספר לא שלם של 333 ושליש אמה. ואילו נקט אמה של 51 ס''מ היה מקבל 313.725... ואין דרך מקרא להשתמש במספרים לא שלמים. ונראה לי ששני שערים דרומיים נקראים שערי אפרים כמו ששניהם נקראים במסכת מידות "שערי חולדה". המרחק הממוצע משערי אפרים אלו לשער הפינה הוא (240+160)/2=200 מ'. זהו 400 אמה באמה של 50 ס''מ, שהיא אמה בינונית של הר הבית (נזכיר שלפי חשבוננו כתלים של הר הבית נמדדים באמות של 48 ושל 52 ס''מ). יחד עם מרחק 160 מ' שיהואש פרץ בפועל, המקרא גם הצפין את המרחק בין שערי אפרים לשער הפינה. ולמרות ששער משולש הוא אחד משערי אפרים, היה לו גם שם פרטי "המפקד" על שם ייעודו, כי דרכו בני ישראל פקדו את הר הבית. אחרי שיהואש פרץ את החומה, הרחיבו את הר הבית דרומה בקטע (11)-(12) (על כך נדון בהמשך). משום כך קטע זה קבל שם "חומה רחבה". אבל בפועל לא היתה שם חומה. לפי פירושנו במקום החומה בנו שם חנויות. דבר זה מסביר מדוע בוני נחמיה לא חזקו את הקטע הזה.    

 

3.6 חומה מערבית של גבעת העופל

 

            כעת נתייחס לתעלומה של חומה מערבית של הגבעה הדרום-מזרחית. נזכיר שלפי תיאוריה מקובלת, הגבעה היא עיר דוד, היא ירושלים היבוסית והיא ירושלים שבתחילת בית ראשון. בצפונה היא התחברה אל הר הבית שגם הוא היה מצומצם מאד. במסגרת תיאוריה זאת היו מסבירים שחומה מערבית של הגבעה היא חומה מערבית של העיר. אבל אחרי שהתברר לנו שירושלים הקדומה כללה את הגבעה המערבית, יש לשאול מה היה תפקיד של חומה זאת. בתחילת מאמרנו הבאנו את דברי תוספתא סנהדרין פרק ג' "אבא שאול אומר שתי בצעין היו בירושלים (בגמרא שבועות ט''ז הנוסח "בהר המשחה") התחתונה והעליונה. התחתונה נתקדשה בכל אלו והעליונה לא קדשו כשעלו מן הגולה שלא במלך ושלא באורים ובתומים וכו'. ומפני מה לא קדשוה (גמרא שם מקשה ומתרצת "אלא למה הכניסוה")? מפני שתורפה של ירושלים משם ונוחה ליכבש משם". משמע מכאן שהרחיבו את העיר פעמים. פעם אחת בבית ראשון ופעם שניה בבית שני. אותה הרחבה שניה היתה במקום תורפה. מתיאור של יוספוס במלחמות ברור שמקום תורפה היה בצפון. שם היה מחנה אשורי, משם העיר נכבשה ע''י רומאים. ומן הסתם, משם נכבשה גם ע''י בבלים. נחמיה מתאר חומות ירושלים "אשר הם פרוצים ושעריה אכלו באש" ליד שער האשפות אשר לפי חשבוננו נמצא בחומה צפונית ראשונה של העיר, סמוך לפינה מערבית. כי שם נכבשה העיר. מכאן בצעין עליונה היתה בצפון, צפונית לחומה הראשונה. כנראה בין חומה ראשונה לשניה. בצעין תחתונה היתה בהכרח במקום נמוך, בגבול דרומי או מזרחי של העיר.  והנה בדברי הימים ב' כ''ז ג' מוזכרת בנית יותם "ובחומת העפל בנה לרב". זהינו אזור העופל מנקודה (42) וצפונה. מכאן נלמד שלפני בניה של יותם, חלק של גבעה דרום-מזרחית מנקודה (42) וצפונה היה מחוץ לעיר. עכשיו גם מובן מדוע יהואש פרץ בפינה דרום-מזרחית של הר הבית משער אפרים עד שער הפינה. כי פינה זאת לא היתה מוגנת ע''י חומת העיר. מאחר וזהינו שער אפרים עם שער משולש, מסתבר שחומה מזרחית של העיר התחברה בזמן של יהואש אל שער משולש. מכאן בצעין תחתונה זהו חלק צפוני של הגבעה. מדרום הוא מוגבל ע''י הקו מנקודה (42) לשער סוסים, ממזרח ע''י קו (42)-(48) וממערב ע''י  חומה מערבית של הגבעה עד שער משולש. ושם כנראה ישבה חולדה, סמוך לשער אפרים הוא שער חולדה (הערה 26: ומה הקשר ביניהם? כתוב  במגילה י''ד ע''ב "אמר רב נחמן חולדה מבני בניו של יהושע היתה". ושער אפרים הוא שער יהושע אשר בא משבט אפרים. והוא כבש את הגבעה הדרום-מזרחית שבה ישב אדני-צדק מלך ירושלים. מעשה זה מוזכר בשופטים א' ח'. אבל הוא היה לפני מות יהושע, כי הוא קדם לכבוש חברון וכבוש חברון היה בזמן יהושע (ראה יהושע י''א כ''א וי''ב י'). ואילו ירושלים היבוסית היתה ממגדל דוד צפונה ומזרחה עד כותל מערבי של הר הבית). אותו חלק התקדש במלך ונביא ואורים ותומים ובסנהדרין של ע''א ובשתי תודות ובשיר (שבועות ט''ז) בזמן יותם. והנביא שהיה בזמנו הוא ישעיה בן אמוץ (ישעיהו א' א'). אומנם גם מנשה הרחיב גבולות ירושלים כפי שכתוב בדה''ב ל''ג "ואחרי כן בנה חומה חיצונה לעיר דויד מערבה לגיחון בנחל ולבוא בשער הדגים וסבב לעפל ויגביהה מאד וכו'". אלא מנשה כידוע הרג את ישעיהו ולא נראה שהיה בזמנו נביא אחר. על כן תוספת שלו לא התקדשה. (הערה 27: מהי תוספת של מנשה? שער דגים נמצא לפי חשבוננו סמוך לפינה צפון-מזרחית של הר הבית המקודש, עיר דוד בפינה צפון-מערבית. מעין גיחון היה בבריכת חזקיה. מנשה בנה חומה ממגדל דוד צפונה וסביב בריכת חזקיה ומשם מזרחה לאורך ציר בית המקדש (זוהי מסילת שדה כובס והוא נחל השוטף בתוך הארץ) ושוב צפונה ומזרחה עד שער הדגים. תוספת צפונית זאת היא בצעין עליונה או חלק ממנה. ועוד בנה בעופל. יתכן שבנה חומה חיצונית. ויותר נראה שלא הוסיף שם כלום אלא הרחיב את הר הבית מתפר עד פינה דרום-מזרחית של היום ועד שער משולש. פינה דרום-מזרחית של הר הבית היתה נקראת קרן העופל (ראה ירושלמי תענית ט''ז ע''ב ובבלי תענית כ''ב ע''ב ושם מבואר שהוא מקום גבוה ביותר. וגם יוספוס בקדמוניות ספר ט''ו י''א ה' מתאר את הגובה העצום מגג הסטיו המלכותי עד עמק קדרון. ובמדריך ירושלים מן הגניזה הקאהירית כתוב בפרוש שהפינה הנשקפת על נחל קדרון היא קרן העופל). ומנשה בנה שם חומה בגובה עצום).

            ועדיין יש להבין מהו פשר חומה מערבית של הגבעה מנקודה (38) עד שער הסוסים? לשם כך ננסה לשחזר את החומה ולמדוד אורכה. נתחיל מנקודה (38)360.43/791.9   אשר נמצאת בפינה דרום-מזרחית של חצר המטרה (מפה 5). וזוהי גם נקודת חיבור של חומה מערבית עם חומה מזרחית. נקודה הבאה א' היא נקודה  P2 345/801.7 במפת בליס, נקודה הבאה ב' זוהי T2 313.5/843.3, נקודה הבאה ג' זוהי V2 284.6/933.1, נקודה ד' 284.6/958   זהו קצה צפוני ביותר של חסימת אבן (כאן אנו עוברים למפה 6) , כ- 10 מ' מטר מזרחה לנקודה C3. נקודה ה' זוהי K3 292.2/1016.9   , על גבול מזרחי של הרחוב. משם וצפונה הרחוב נעשה צר יותר (ראה בליס עמ' 141). מנקודה ה' וצפונה מהלך מדויק של חומה מערבית לא ידוע. אבל במרחק של כ- 230 מ'  מנקודה ה' צפונה לאורך רחוב הראשי של הגבעה, נמצא שער קדום אותו חפרו(1927)  Crowfoot and Fitzgerald. רחוב זה תואם את תוואי של עמק טירופיון. על כן מסתבר שחומה מערבית נמשכה לאורך העמק. בחרנו נקודה ו' 325.5/1134.85 בקצה צפוני חתך סלע (ראה מפה 7)  בצד מזרחי של הרחוב כנגד נקודה (42). קו ה'-ו' עובר כמעט במדויק לאורך חתך זה.  בחרנו נקודה ז' 378.5/1245.5  כ- 15 מ' צפונית לשער הנ''ל בפינה צפון-מזרחית של צומת שממנה יוצא רחוב צדדי מזרחה. קו ו'-ז' עובר כמעט במדויק לאורך צד המזרחי של רחוב הראשי. משם העברנו קו חומה בקו ישר למזוזה מזרחית של שער משולש, היא נקודה ח' 510/1478.91 (ראה מפה 8) . אורך הקו מנקודה (38) דרך א'-ח' הוא 762.2 מ' או 1500 אמה (פחות ערך זניח של 2.8 מ'). לתוך אורך זה נכנסים 9 קטעים של 85 מ'. נציין שמרחק ממרכז שער משולש חיצוני נ.צ. 502.18/477.54 עד למרכז שער משולש פנימי (נקודה (11) 487.04/561.25) (ראה גליון צפוני(253KB)   הוא  85.07 מ', כמעט במדויק 85 מ'. על כן השערה שלנו שחומה מזרחית של ירושלים בתחילה עברה במסלול (38)-א'-ח'-(11) ואחר כך שני קטעים של 80 מ' 47'-48' ו-48'-49' לאורך גבול דרומי וגבול מזרחי של הר הבית המקודש עד שער הפינה ועוד קטע של 80 מ' עד שער שושן. סה''כ 13 קטעים מנקודה (38) עד שער שושן לעומת 12 קטעים לאורך חומה מזרחית של נחמיה. אבל, מאחר ומסלול "מערבי" כולל את אורך חומה הרחבה (11)-(12), אז יש למחוק מן המספור את הקטע (11)-(12) של חומת נחמיה. ואז נקודה (13) במספור קודם תהפוך ל- (12) וכל מספרי נקודות בהמשך יקטנו באחד. נמצא שחומה המקורית של ירושלים היתה מורכבת בדיוק מ- 49 קטעים כמו חומת נחמיה. נקציב לאורך הקו (38)-א'-ח' קטעים באורך 85 מ'. נסמן נקודות חלוקה של חומה המקורית ע''י תוספת תג. לפיכך נקודה (38) תסומן ע''י 37'. נקודה 38'  309.0/857.2, נקודה 39' 284.6/938.3 נמצאת 5.2 מ' צפונית מנקודה ג'.  כאן נעמיד את שער המים כנגד נקודה (40) 408.89/952.27 במזרח. נקודה 39'  נמצאת כנגד גבול דרומי של חלק מזרחי של חסימת אבנים (ראה מפה). אולי חלק מזרחי זהו מגדל הגדול היוצא והוא היה סמוך מצפון לשער המים. נקודה 40' 293.8/1022.6. נקודה 41' 316.9/1104.4. נעמיד שם את שער הסוסים. קטע 41'-(42) 408.81/1121.49 מכוון בזוית 10.53 מעלות צפונה מן המזרח, בדיוק כמו כיון כותל דרומי של הר הבית המקודש ואורכו 93.48 מ' כנגד אורך 93.075 מ' של חומה הרחבה מ- (11) ל-(12). אולי משום כך קטע זה נקרא חומת העופל כנגד חומה דרומית בולטת של הר הבית?. נקודות 42'-46'  בהמשך הם 348.6/1183.0  386.2/1259.2  427.9/1333.2  469.6/1407.3  510.0/1478.9. השער של Crowfoot and Fitzgerald נמצא בערך בנ.צ. 372/1234. מאיר בן דוב בספרו "ביצורי ירושלים", עמ' 32, דן במבנה של שער זה. לפי דבריו פתח השער נמצא בצד מזרחי והוא צר יותר מבית שער מערבי. על כן לפי דעתו, דלתות היו במזרח והם בהכרח היו נפתחות פנימה, מערבה. דבר זה מוכיח כי חומה עם השער לא היתה חומה מערבית של עופל אלא חומה מזרחית של ירושלים הגדולה לפני שנוספה אליה גבעת העופל. שער זה מוליך מזרחה אל מעין השילוח המקורי.

            מי בנה את החומה המערבית של הגבעה ומי צירף אליה את החלק הדרומי שלה מנקודה (38) עד (42)? בש''ב ה' ט' כתוב "ויבן דוד סביב מן המלוא וביתה". ובמ''א ט' ט''ו "וזה דבר המס אשר העלה המלך שלמה לבנות את בית ה' ואת ביתו ואת המלוא ואת חומת ירושלם וכו'".לגבי מילוא כבר בררנו שזהו אזור של בריכת חזקיה ושלמה "סגר את פרץ עיר דוד אביו" (מ''א י''א כ''ז), קטע (19)-(20). בסנהדרין ק''א ע''ב מבואר "אמר לו (ירבעם לשלמה) דוד אביך פרץ פרצות בחומה כדי שיעלו ישראל לרגל ואתה גדרת אותם כדי לעשות אנגריא לבת פרעה". משמע שזאת היתה פריצה יחידה ודוד סבב אל כל העיר בחומה, פרט למלוא. וזה מה שכתוב שם "ויבן סביב מן המלוא וביתה". והרי גם שלמה בנה "חומת ירושלים"! ונראה לי להקיש בניה חומה זאת לבניה במלוא. בניה אחת בפינה צפון-מערבית של העיר בהקשר למעיין שילוח עליון ובניה שניה בפינה דרום-מזרחית בהקשר למעיין שילוח תחתון. בניה ראשונה עבור בת פרעה ובניה שניה עבור שאר נשותיו. בית המלך אחד ליד מגדל דוד בפינה צפון-מערבית של העיר ובית מלך שני בפינה דרום-מזרחית. מכאן ברור ש"נקבת חזקיה" היא נקבת שלמה, אשר עשה בריכה לנשותיו סמוך לבית המלך. ולא בכדי יוספוס במלחמות ה' ד' ב' קורא לה בריכת שלמה. ויש גם דמיון במידות עיר דוד עליונה ו"עיר דוד" תחתונה. עיר דוד למעשה מתחילה בשער העין בנקודה (20) ונמשכת עד נקודה (25). בצד מזרחי היא מוגבלת ע''י גבול מערבי של תחום 3000 אמה של ירושלים לע''ל. הגבלנו אותה בדרום ע''י קו רוחב של נקודה (25). מתברר ששטח של תחום זה שוה 46.38 בית סאה (בית סאה זהו 2500 אמות רבועות באמה של 51 ס''מ). כנגד זה שטח של "עיר דוד" תחתונה אשר מוגבלת ממזרח ע''י חומה מזרחית מנקודה (38) עד (42) וממזרח ע''י חומה מערבית מ- (38) עד ((41' ומצפון ע''י חומת העופל (42)- 41')) שוה 46.44 בית סאה. יש כאן שוויון  מעבר לדיוק המדידה.

            נתבונן בגבולות של ירושלים בזמן דוד. העיר ללא הר הבית מוגבלת ע''י קו אשר יוצא שער הישנה הוא שער קיפנוס- נקודה (13)=(8) מערבה ל-(20), דרומה ל- (28), מזרחה ל-(37), משם צפונה דרך (38)-(38')-...46'))-47'))=(11) לשער אפרים או מפקד ומשם שלשה קטעים (11)-(10)-(9)-(8) בחזרה לשער קיפונוס. יש בהיקף זה 32 קטעים של 85 מ', קטע של חומת בריכת שילוח (19)-(20), שני חצאי קטעים (27)-(28) (45.4 מ') ו- (37)-(38) 53.4 מ' ושלשה קטעים (8)-(11) של 80 מ'. את הקטע (19)-(20) דוד השאיר פרוץ. סכום חצאי קטעים 45.4+53.4=98.8 יחד עם שלשה קטעים של 80 מ' שוה 4 קטעים 85 (פחות מספר זניח של 1.2 מ' אשר מתקזז כנגד עודף המרחק של 1 מ' בין נקודה ט' לנקודה (37) לעיל). מכאן הקף חומה בנויה של העיר הוא 36 קטעים של 1000/6 אמה או 6000 אמה כנגד רבוע של 1500 על 1500 אמה. כלומר, ירושלים של דוד תפסה רבע דרום-מזרחי של הרבוע העתידי של 3000 אמה. אחרי תוספת של "עיר דוד" תחתונה ובצעין תחתונה, גבול מזרחי של העיר עבר מנקודה (37) דרך (38)-(39)...(48)-(12)-(11)-(8). והנה, אם ממעטים מן הקף את הקטע (12)-(11) של חומה הרחבה אשר לא נבנתה ע''י נחמיה (אותו קטע שפרץ יהואש) וקטע פרוץ של חומת בריכת שילוח (19)-(20), אנחנו חוזרים לאותו הקף של 6000 אמה (בתוספת קטע קצר של 13.075 מ' מ-(48)-(12)). שטח העיר המורחבת 929.5768 בית סאה לעומת 900 בית סאה שהוא שטח של 1500 על 1500 אמה. שטח ירושלים בגבולות של דוד הוא 835.2089 בית סאה. עם תוספת של "עיר דוד" דרום-מזרחית השטח יהיה 881.6462 בית סאה.     

עתה נוכל להבין את פשר שער סוסים ומקומו. המרחק ממנו לשער אפרים-מפקד לאורך הקו 41'-47' שוה בדיוק 1000 אמה. וכן המרחק משער אשפות לשער קיפנוס לאורך הקו (13)-(19). שערים אלו דומים אחד לשני. המרחק ממרכז שער קיפונוס עד פינה דרום-מערבית של הר הבית 365/2 אמות וכן המרחק בין שער המפקד לפינה דרום-מזרחית של הר הבית. שער קיפונוס משמש לכניסה ויציאה וכן שער מפקד משמש לכניסה של ישראל (ושל חתנים) ויציאה של אבלים. בדה''ב כ''ג ט''ו כתוב לגבי עתליה "ותבוא אל מבוא שער הסוסים בית המלך וימיתוה שם". עתליה הלכה דרך שער מפקד כמו שיוצאים אבלים ומנודים ומשם על גבי חומה לשער סוסים ומשם אל בית המלך אשר בפינה דרום-מזרחית של העיר. ואילו יואש בא "בתוך שער העליון בית המלך" (שם, כ'). שער עליון מוזכר במשנה במסכת מידות פ''ב מ''ו והוא שער מערבי ביותר משלושת השערים הדרומיים של עזרה (הערה 28: שער עליון שהוא לדברי ירושלמי שער נקנור, זהו השער אשר מוזכר ביחזקאל ט' ב' "והנה ששה אנשים באים מדרך שער העליון אשר מפנה צפונה". ואף ששער נקנור פונה מזרחה, הכוונה לציר בית המקדש אשר פונה אל בבל צפונה. ומשם באה הרעה). ובמ''ב י''א י''ט כתוב "ויבואו דרך שער הרצים בית המלך". והוא שער "אחר הרצים" המוזכר שם בפסוק ו'. מאחר ורצים עמדו בין בית המקדש ולבין המזבח (שם, י''א) אז בהכרח שער זה מערבי. והוא שער קיפונוס על גבי גשר ודרכו היו רצים לבית המלך. על כן יואש יצא מעזרה דרך שער עליון ומשם הלך דרך שער קיפונוס אל בית המלך בפינה צפון-מערבית של ירושלים. מכאן נלמד שבית המלך הדרום-מזרחי היה מיועד לנשים וצפון-מערבי לאנשים. וכן בשם שער סוסים, אין הכוונה שדרכו יצאו הסוסים כי אין שם בגבעה דרום-מזרחית מקום שטוח להחזיק סוסים. אלא הכוונה לנשים אשר הרבה שלמה כמו שהרבה סוסים. והם היו עולות בחומה, אלף נשים באלף אמות משער הסוסים עד שער המפקד. ואילו מקום טבעי לסוסים נמצא בגבעה המערבית, בחצר התיכונה, בשטח גן הארמני של היום. ויש רמז לכך בפסוק "וישבת את הסוסים אשר נתנו מלכי יהודה לשמש מבא בית ה' אל לשכת נתן מלך הסריס אשר בפרורים וכו'" (מ''ב כ''ג י''א). ופרש רד''ק "שהיו רוכבים עליהם והולכים לקראת השמש בבוקר בזרחה והיו הולכים לקראתו ממקום שהיה מבוא בית ה' עד לשכת נתן מלך". כלומר הם הלכו ממערב למזרח בעליה אשר הובילה אל בית המקדש. זוהי הדרך שמוליכה היום משער יפו אל שער השלשלת הוא שער קיפונוס. והם באו מבית המלך אשר היה סמוך למגדל דוד. ולידו היו אורוות סוסים (כמו שהיום אורוות סוסים במתחם המשטרה בקישלה). וגם פרוור זהו צד מערבי של ירושלים כנגד שער הפרוור הוא שער וורן של היום (הערה 29: נתן מלך הסריס לדעתי צירוף מילים אשר מרמז על נתן הנביא אשר בא אל דוד המלך בדבר אוריה החיתי אשר סרב לבוא אל בת שבע, כעין סריס. ולשכתו זהו ביתו שעל גגו טבלה בת שבע במרחק של מטחוי קשת ממגדל דוד. ושם שלמה בנה את בית בת פרעה. והוא מקור עבודה זרה, עבודת שמש ועבודת סוסים אשר באו ממצרים. ומהי? כוחי ועוצם ידי. והפסוק לעיל מדבר על קטע משער העין עד שער האשפות אותו סגר שלמה. ומשם בת פרעה עלתה להר הבית, אלף אמה עד שער קיפונוס).  

 

 4. חנוכת חומות ירושלים ע''י נחמיה

 

            חיזוק חומת העיר נמשך 52 יום והושלם בכ''ה אלול (הערה 30: כל זה היה בשנת 3415 היא שנה ששית לבית שני כי נחמיה עלה עם עזרא. ומה שכתוב בספר נחמיה ב' א' "שנת עשרים לארתחשסתא" הכוונה לאחשורוש אשר ביטל בניין בית המקדש בשנה שניה שלו. ועשרים שנה אלו נמנים מאותה שנה שניה. קצרתי כי אין כאן מקום להאריך). ומיד אחרי זה חנכו את החומה וקדשו את העיר ע''י שתי תודות (ולמ''ד שקדושה ראשונה לא בטלה, נחמיה עשה זכר בעלמא). וכך כתוב בנחמיה י''ב ל''א "ואעלה את שרי יהודה מעל לחומה ואעמידה שתי תודת גדולת ותהלכת לימין מעל לחומה לשער האשפות". ובהמשך (פסוקים ל''ז-מ') "ועל שער העין ונגדם עלו על מעלות עיר דויד במעלה לחומה מעל לבית דויד ועד שער המים מזרח. והתודה השנית ההולכת למואל ואני אחריה וחצי העם מעל להחומה מעל למגדל התנורים ועד החומה הרחבה. ומעל לשער אפרים ועל שער הישנה ועל שער הדגים ומגדל חננאל ומגדל המאה ועד שער הצאן ועמדו בשער המטרה. ותעמדנה שתי התודת בבית האלקים ואני וחצי הסגנים עמי". יש כאן חלוקה ברורה של עם לשני חצאים. חצי אחד עמד מעל לשער העין (נקודה 20) ועל מעלות עיר דוד (נקודה 21) ועד שער המים מזרח (נקודה 39'). משמע שהם הקיפו חצי העיר, דהיינו רוח מערב ודרום, בכיוון נגד שעון. מנקודה 20 עד 38=37' 18 קטעים ומ- 37' עד 39' עוד שני קטעים. סה''כ 20 קטעים. וחצי שני "מעל להחומה"- הכוונה לחומה מעל לשער האשפות (נקודה 19) המוזכרת בפסוק ל''א. ומשם למגדל תנורים (נקודה 17) בהמשך בכיוון השעון עד תחילת חומה הרחבה (נקודה 11) דרך שער הישנה (13=8). סה''כ 9 קטעים. איך סגרו מעגל העיר? סוף פסוק ל''ט "ועמדו בשער המטרה"  יש לצרף לסוף פסוק ל''ח. כלומר מחומה הרחבה סגרו את המעגל דרך חומה מזרחית של העיר מנקודה 12 הסמוכה ל- 48 ועד נקודה 37 היא שער המטרה. זהו 11 קטעים, ובצירוף 9 הנ''ל מקבלים בדיוק 20 כמו בחצי מעגל הראשון. ואילו אורך חומה הרחבה 11-12 לא בכלל חשבון כפי ראינו בפרק 3. וכן אורך חומת בריכת שילוח 19-20 לא בכלל חשבון. ותחילת פסוק ל''ט מתאר את הקף הר הבית משער אפרים (נקודה 11) בכיוון השעון דרך שער הישנה (8), שער דגים (4) מגדל חננאל, מאה, ושער הצאן (1). וסוף הפסוק "ועמדו בשער המטרה" מצטרף גם למעגל הר הבית להשלימו בכיוון דרום עד לנקודה 12. וקשה, מדוע חצי מעגל ראשון מסתיים בשער המים ולא בשער המטרה, להתחבר אל חצי השני. ויש לומר שהם רצו לקדש את שתי חומות של הגבעה המזרחית, חומה מערבית וחומה המזרחית כפי שנסביר מיד.

            לגבי אופן מהלך התודות, מפורש בגמרא שבועות ט''ו ע''ב שהיו שתי תודות אשר הלכו ביחד זה אחר זה או זה כנגד זה. תחילת המסלול חייבת להיות בהר הבית שהרי קרבן תודה נעשה על מזבח בעזרה ולחמי תודה מתקדשות בעזרה. ואחר כך מוצאים אותם החוצה. והנה בנחמיה משמע שתחילת מסלול הייתה "מעל לחומה לשער האשפות", וזה מחוץ להר הבית. ויש לומר שכל האורך של 1000 אמה משער הישנה עד שער האשפות אשר מוזכר בנחמיה ג' י''ג, נקרא "חומה לשער האשפות". על כן תחילת מסלול התודות היה בשער הישנה. ומשם הם הלכו "לימין" כנגד כיוון השעון, דהיינו מערבה, לשער האשפות. וסיבבו את העיר עד אשר הגיעו לשער המטרה בפינה דרום-מזרחית של העיר. סה''כ 24 קטעים מ- 13 עד 37. משם התודות עלו לנקודה 38 בסוף מקצוע והתפצלו. אחת הלכה לאורך חומה מזרחית עד נקודה 48 ושניה לאורך חומה מערבית של גבעה המזרחית עד נקודה 11=47'. שתיהן הלכו אותו מרחק, 10 קטעים של 85 מ'. לכן הלכו במקביל, זה כנגד זה. תוספות בשבועות ט''ו ע''ב ד''ה "אמטו" סוברים ששתי תודות מהלכות בפנים החומה. ורש''י שם סובר שהן מהלכות מחוץ לחומה. וריטב''א מסתפק שמא הלכו על גבי חומה. והנה לפי תוס' נתקדשה חומה מזרחית של הגבעה ולפי רש''י חומה מערבית ולפי ספק של ריטב''א נתקדש התחום בין חומה מערבית וחומה חיצונית וכמובן כל העיר בפנים. על כן התחום בין החומות, מנקודה 38 עד גבול דרומי של הר הבית המקודש נעשה כאילו חומה אחת רחבה. וזהו בצעין תחתונה אשר הזכרנו לעיל. וגם הבנו מה מקור השם "חומה רחבה" לגבי קטע 11-12.  

            מה המשך מהלך התודות מקטע 11-12? יש לכאורה שתי אפשרויות. אחת לפנות מערבה לשער הישנה ולסגור מעגל העיר. ואז להמשיך לסובב את הר הבית עד קטע 11-12 כדי לקדש גם את הר הבית.  אבל אז סיבוב חומות הר הבית איננו דרך ימין. אפשרות שניה, לסובב את הר הבית דרך ימין ולחזור לקטע 11-12. ואז מעגל העיר נסגר לא כסדר. ונראה לי שסדר העמידה בפסוק ל''ט, משער אפרים מערבה ונגד כיוון השעון מלמד שבחרו באפשרות ראשונה. למ''ד שקדושה ראשונה לא בטלה, לגבי הר הבית אין כאן קושיה, כי נחמיה עשה זכר בעלמא. ולמ''ד שהיא בטלה, אולי קדשו את הר הבית אחרי שבנו את בית המקדש בשנה ששית לדריוש (ג' באדר שנת 3414, ראה עזרא ו' ט''ו). שהרי בני ישראל אכלו פסח באותה שנה (שם, כ''א). ומן הסתם אכלו אותו בהר הבית. ולשם כך היו צריכים לקדש הר הבית בקדושת מחנה ישראל.

            נמצא מספר קטעים שקידשו בשתי תודות הוא 48. חצי משער הישנה עד שער המטרה. וחצי משער המטרה עד החזרה לחומה הרחבה. כיצד? 11 קטעים מ- 37 עד 48, 11 קטעים מ- 12 עד 1  ו-2 קטעים מ- 1=50 עד 12 ((תוספת מרחק 13.075 מ' בין 48 ל- 12 מתקזזת כנגד חוסר אותו מרחק בין 49 ל-12).

 

5. מקומה של אקרא יוונית.

 

             אחרי שהתברר לנו שעיר דוד נמצאת במקום של מגדל דוד, נוכל גם למקם את המצודה היוונית (אקרא או חקרא). לפי ספר מקבים א' (פרק א' פסוק ל''ג) מצודה היתה בעיר דוד או סמוכה לעיר דוד. מאידך לפי יוספוס בקדמוניות י''ב (פסוק 252) חקרא היתה בעיר תחתונה, והיתה נשאת על בית המקדש. ובמלחמות ה' ד' א' הוא כותב "העיר נוסדה על שתי גבעות צופות ועמק מפריד ביניהן בתוך, והעמק הזה חסם בעד הבתים הצפופים. משתי הגבעות האלה האחת, אשר נמצאה עליה העיר העליונה, היא גבוהה הרבה מאחותה וגם ישרה ממנה בארכה. על חסנה נקראה הגבעה הזאת בשם "מצודת דוד המלך". הוא אבי שלמה, בונה בית המקדש הראשון ובימנו נקראה בשם שוק העליון. הגבעה השניה היא הנקראה בשם חקרא (אקרא) אשר עמדה עליה העיר התחתונה והיא עקומה משתי רוחותיה. ממול הגבעה הזאת נמצאה גבעה שלישית, אשר לכתחילה שפלה מגבעת חקרא ועמק רחב הפריד בין שתיהן. אולם אחרי כן בימים, אשר מלכו החשמונאים, סתמו את העמק הזה, ברצותם לחבר את העיר אל בית המקדש ועדרו את ראש חקרא והשפילו את קומתה, למען אשר יתרומם בית המקדש עליה. והגיא הנקרא בשם עמק עושי הגבינה, אשר אמרנו עליו, כי הוא מפריד בין העיר העליונה ובין הגבעה התחתונה, משתרע עד השלח- בשם הזה אנו קוראים למעין מים חיים חזק.

             מתוך תיאור של יוספוס ברור שעיר תחתונה איננה גבעת העופל כי היא לא היתה מופרדת מהר הבית ע''י עמק וגם איננה גבוהה ממנו אלא נמוכה בהרבה. ולא יתכן כלל שהנמיכו את גבעת העופל בעשרות מטרים. אבל מאחר וחקרא היתה סמוכה לעיר דוד, עיר התחתונה היא בהכרח גבעה צפון-מערבית, מצפון וממזרח לבריכת חזקיה. וכן בפרוש כתוב במלחמות ה' ד' ב' בהוצאה הישנה "והחומה השניה החלה על יד השער הנקרא גנת אשר לחומה ראשונה והקיפה את רוח צפון אשר למצודה (חקרא)) והשתרעה עד מצודת אנטוניה". גבעה זאת מופרדת מעיר העליונה ע''י אוכף בשער יפו. ומאוכף זה יורד מזרחה נחל צולב אשר מתחבר עם עמק טורופויון (הוא עמק עושי הגבינה) אשר משתרע עד השלח. ועמק זה מפריד בין גבעה מערבית להר הבית. אבל לפי דברי יוספוס נחל צולב גופא נקרא בשם "עמק עושי הגבינה" (הערה 31: איזה גבינות היו עושים בירושלים? הרי אסור היה לגדל בהמה דקה או גסה בירושלים ובסביבתה. אלא הצפינו בשם זה את נוטריקון גי בן הינום כדי לא להזכיר את הדבר המגונה). ומשכתוב אצל יוספוס ש"מלכי החשמונאים, סתמו את העמק הזה (בין גבעת חקרא ולבין הר הבית), ברצותם לחבר את העיר אל בית המקדש", הכוונה לרחוב חשמונאי לאורך כותל מערבי של הר הבית אשר הגביהו אותו מאד מעל קרקע טבעי. גובה קרקע היום בעיר העליונה באזור קשלה וגן ארמני  כ- 775 מ' מעל פני הים. ואילו גובה קרקע באזור בריכת חזקיה ומזרחה 760 מ' מעל פני הים. הפרש גובה זה ניכר לעין. ואין יוספוס מתייחס לצד צפון-מערבי של העיר העתיקה של היום שהוא מגיע לגובה 780-785 מ' מעל פני הים, כי אזור זה היה מחוץ לחומה שניה. הרושם של הפרש גובה בין עיר עליונה לגבעת חקרא היה חזק יותר כנראה משום שלא היו בנינים גבוהים שם כי היא היתה מחוץ לירושלים הקדושה. ואילו בעיר עליונה היו מגדלים גבהים וארמון הורדוס. ומשכתוב "והשפילו את קומתה, למען אשר יתרומם בית המקדש עליה" אין הכוונה שהשפילו אותה למטה מגובה הר הבית אלא השפילו לעומת גובה של סטוים כפולים (בגובה 50 אמה) מעל כותל מערבי של הר הבית.

             היכן בדיוק בגבעה הצפונית עמדה המצודה? המקום המתאים ביותר זהו עין עיטם, אותו אזור של 100 על 100 אמה במערב התחום של 3000 אמה עם תוספת מגרש שבו שמואל ודוד חשבו לבנות את בית המקדש. אזור זה כולל את מקום בית יער הלבנון של שלמה בין שני צירים היוצאים מקדש הקדשים, וחצי מערבי של בריכת חזקיה. ויתכן שהוא  התפשט עד כנגד שער האשפות מזרחה ועד קו החומה בין שער העין ושער האשפות (קטע 19-20) והתחבר למגדל דוד ע''י חומה בקטע 20-21. באופן זה יוונים שלטו על שני שערים עיקריים של העיר, שער העין ושער האשפות. ויכלו לירות חצים על באים מצפון דרך שער הגיא. "והיו מגיחים פתאום והורגים בעולים לבית המקדש בכוונה להקריב קרבנות" (קדמוניות י''ב 362). ולא שנכנסו להר הבית עצמו אלא היו פוגעים בהם בדרך עלייתם. וכן משכתוב בספר מכבים א' א' ל''ו "וישפכו דם נקי מסביב למקדש ויטמאו את המקדש" אין הכוונה לבית המקדש אלא סביב להר הבית. "ויטמאו"-גרמו טומאת מתים. ויתכן שסתמו את מעבר מים מבריכת שילוח להר הבית אשר היו מגיעים למקוה של כהן גדול על גבי שער המים (ראה יומא ל''א ע''א)

             פרט לשליטה צבאית, היתה ליוונים גאווה על כך שהם שולטים על מקום המתחרה בבית המקדש (הערה 32: יש סיבות עמקות מדוע במקום זה חשבו לראשונה לבנות את בית המקדש. אנחנו לא נדון על כך כאן). לכן עקירת הגבעה עליה עמדה המצודה היה דבר עקרוני בשביל יהודים. האם לעקירה זאת נשארה עדות כלשהי בשטח? המקום הגבוה היה כנראה בתחום של 50 על 100 בו עמד בית יער לבנון. ושם היה ראש ההר אשר מוזכר בספר יהושע ט''ו ה' "ועלה הגבול אל ראש ההר אשר על פני גי הנם ימה וכו'", מערבית לנחל צולב. כעת עומדים במקום זה בנינים, על שפה מערבית של בריכת חזקיה. ויתכן שראש ההר הזה לא היה גבוה במיוחד אלא כמו בליטת סלע שתיה בהר הבית, שש אמות מעל קרקע העזרה. ועיקר התנשאות של חקרא היתה בגלל בנין המצודה עצמה.

     לפי הבנתנו, גן המלך היה בחלק מרכזי וצפוני של בריכת חזקיה ואילו בריכת שילוח היתה בחלק דרומי של הבריכה. יתכן שבזמן שהשפילו את חקרא, חפרו גם את הגן והפכו אותו לבריכה. ועשו את גינת הורדים בשטח 50 על 100 אמה, במקום בית יער לבנון. מאחר ומקום זה בעתיד יהיה בתחום מגרש העיר, ראוי היה לעשות גינה שם. וכן שינו שם שער העין לשער גינת.

 

ביבליוגרפיה

(1) Excavations at Jerusalem 1898  Bliss and Dickie,

(2) Guthe, ZDPV, v. 5

(3) C. Warren, Ordnance Survey of Jerusalem

(4)R. Sivan and G. Solar, Excavations at the Citadel of Jerusalem, 1980-88, Ancient Jerusalem Revealed 1994, pp. 168-176     .

(5) Johns, C.N. “The Citadel, Jerusalem-A Summary of Work Since 1934”  QDAP 14 (1950):121-190